WAREHOUSE WITH OFFICES FOR RENT SAN PEDRO GARZA GARCÍANAVE CON OFICINAS EN RENTA SAN PEDRO GARZA GARCÍA

La Leona, San Pedro Garza García, Nuevo León

  • $1,000,000 For Rent
Ver Tour Virtual

Details

  • Type: Industrial Building
  • ID: EB-UT4271
  • Age: New
WAREHOUSE WITH OFFICES FOR RENT SAN PEDRO GARZA GARCÍA BLVD. DÍAZ ORDAZ
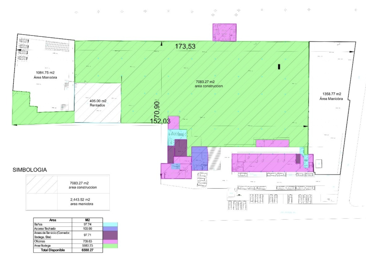
Rentable area 9,031.79m2
Maneuvering area 2,443.52m2
Construction area 6,588.27m2
Bathrooms 97m2
Covered access 100m2
Service area dining room 97m2
Offices 708m2

$1,000,000 mxn monthly + VAT
NAVE CON OFICINAS EN RENTA SAN PEDRO GARZA GARCÍA BLVD. DÍAZ ORDAZ
Area rentable 9,031.79m2
Area de maniobra 2,443.52m2
Area de construcción 6,588.27m2
baños 97m2
acceso techado 100m2
area de servicio comedor 97m2
oficinas 708m2

$1,000,000 mxn mensuales + IVA

Amenities

  • Platform
  • Covered parking
  • Street parking
Donner & Asociados

Donner & Asociados

EB-UT4271
Print Property

Location

La Leona, San Pedro Garza García, Nuevo León

Featured Properties