Donner & Asociados

  • 322111162
  • ryan-donner-y-asociados.easybroker.com

NAVE CON OFICINAS EN RENTA SAN PEDRO GARZA GARCÍA

La Leona, San Pedro Garza García

$1,000,000 For Rent

  • 30 Parking spaces
  • 6,588 m² total space
  • 9,031 m² Lot Size
  • New Age
  • EB-UT4271 ID
Description

NAVE CON OFICINAS EN RENTA SAN PEDRO GARZA GARCÍA BLVD. DÍAZ ORDAZ
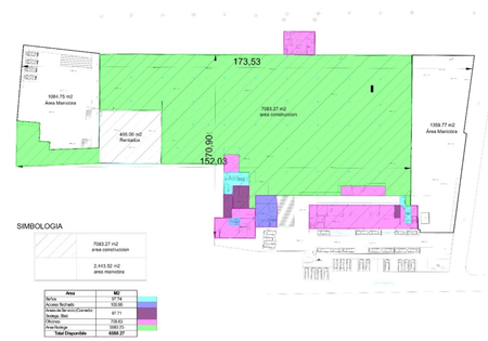
Area rentable 9,031.79m2
Area de maniobra 2,443.52m2
Area de construcción 6,588.27m2
baños 97m2
acceso techado 100m2
area de servicio comedor 97m2
oficinas 708m2

$1,000,000 mxn mensuales + IVA

Amenities
  • Platform
  • Covered parking
  • Street parking

Donner & Asociados

  • 322111162
  • ryan-donner-y-asociados.easybroker.com