Sale or Rent of office in the Espacio Santa Fe towerVenta o Renta de oficina en la torre Espacio Santa Fe

El Yaqui, Cuajimalpa de Morelos, Ciudad de México

  • $43,000,000 MXN For Sale
  • $12,000 USD For Rent
Ver Tour Virtual

Details

  • Type: Office
  • ID: EB-UH3762
  • Internal ID: PACZ260925
  • Half Baths: 4
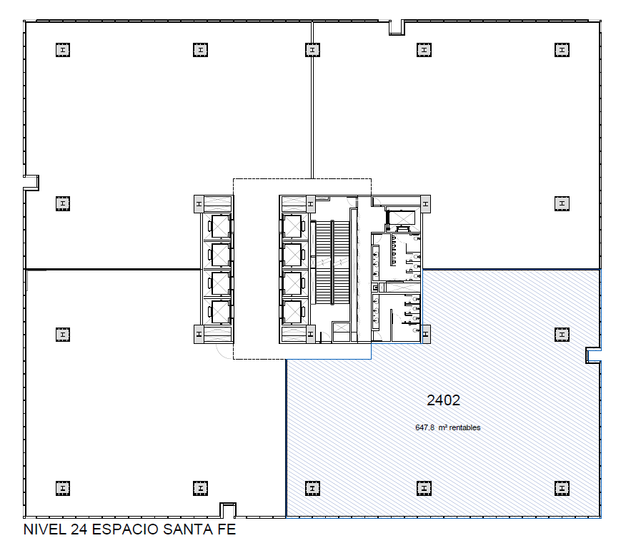
  • Floor: 24
Office for Rent or Sale – Espacio Santa Fe, CDMX

Rentable area: 639 m²
Parking: 19 exclusive spaces
Level: Floor 24

Class A+ corporate office, fully equipped and ready to occupy, located in one of the most iconic towers of Santa Fe. Its height offers a spectacular panoramic view and an image that projects prestige and business solidity.

- Main features:

Equipped and furnished, ideal for starting operations immediately.
Efficient layout with open areas, private offices, and meeting rooms.
Excellent natural lighting throughout the perimeter.
Air conditioning, structured cabling, and state-of-the-art security systems.
19 exclusive parking spaces.

- Strategic location:

In the heart of the Santa Fe corporate district, surrounded by services, hotels, shopping centers, and quick access routes.

Connectivity to Periférico, Toluca, and the west of CDMX.

- Competitive advantage: high-profile office, equipped and ready to operate, ideal for corporations seeking a premium image and immediate occupancy.
Oficina en Renta o Venta– Espacio Santa Fe, CDMX

Superficie rentable: 639 m²
Estacionamiento: 19 cajones exclusivos
Nivel: Piso 24

Oficina corporativa de clase A+, totalmente equipada y lista para ocuparse, ubicada en una de las torres más icónicas de Santa Fe. Su altura ofrece vista panorámica espectacular y una imagen que proyecta prestigio y solidez empresarial.

- Características principales:

Equipada y amueblada, ideal para iniciar operaciones de inmediato.
Distribución eficiente con áreas abiertas, privados y salas de juntas.
Excelente iluminación natural en todo el perímetro.
Aire acondicionado, cableado estructurado y sistemas de seguridad de última generación.
19 cajones de estacionamiento de uso exclusivo.

- Ubicación estratégica:

En el corazón del distrito corporativo de Santa Fe, rodeado de servicios, hoteles, centros comerciales y vías de acceso rápido.

Conectividad a Periférico, Toluca y poniente de la CDMX.

- Ventaja competitiva: oficina de alto perfil, equipada y lista para operar, ideal para corporativos que buscan imagen premium y ocupación inmediata.

Amenities

  • Accessibility for elderly
  • Handicap accessible
  • Air conditioning
  • Furnished
  • Office
  • Backup generator
  • 24 Hour Security
  • Single story
Donner & Asociados

Donner & Asociados

EB-UH3762
Print Property

Location

El Yaqui, Cuajimalpa de Morelos, Ciudad de México

Featured Properties