Land for Sale for Investment – Cape Coral, FloridaTerreno en Venta para Inversión – Cape Coral, Florida

Cape Coral, Florida

  • $69,900 USD For Sale
Ver Tour Virtual

Details

  • Type: Lot
  • ID: EB-VC3438
Take advantage of this excellent investment opportunity in one of the residential neighborhoods with the highest growth potential in Cape Coral, Florida. This premium 0.4-acre lot offers the ideal balance between location, flexibility, and appreciation potential.
The lot has residential zoning, making it perfect for:
Custom home construction
Low-density residential development
Short or medium-term investment project
It has access via a paved road and nearby services, facilitating the start of development and reducing construction times and costs.
🔑 Key added value:
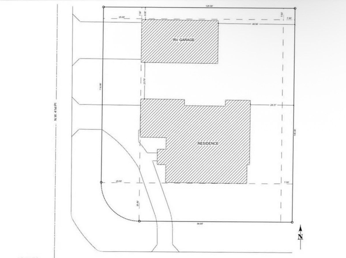
The property includes preliminary construction plans, providing a strategic advantage for investors and developers by allowing them to move faster on the project and take advantage of current real estate market trends in Florida.
📈 Possible investment strategies:
Build immediately and sell or rent
Hold the land and capitalize on future appreciation
Redesign the project according to specific objectives
📍 Strategic location in Cape Coral, a city recognized for its sustained growth, high residential demand, and appeal to international buyers.
Aproveche esta excelente oportunidad de inversión en uno de los vecindarios residenciales con mayor proyección de crecimiento en Cape Coral, Florida. Este terreno premium de 0.4 acres ofrece el equilibrio ideal entre ubicación, flexibilidad y potencial de plusvalía.
El lote cuenta con uso de suelo residencial, lo que lo hace perfecto para:
Construcción de casa a medida
Desarrollo residencial de baja densidad
Proyecto de inversión a corto o mediano plazo
Dispone de acceso por calle pavimentada y servicios cercanos, facilitando el inicio del desarrollo y reduciendo tiempos y costos de construcción.
🔑 Valor agregado clave:
La propiedad incluye planos preliminares de construcción, brindando una ventaja estratégica para inversionistas y desarrolladores al permitir avanzar más rápido en el proyecto y aprovechar las tendencias actuales del mercado inmobiliario en Florida.
📈 Estrategias de inversión posibles:
Construir de inmediato y vender o rentar
Mantener el terreno y capitalizar la apreciación futura
Rediseñar el proyecto según objetivos específicos
📍 Ubicación estratégica en Cape Coral, ciudad reconocida por su crecimiento sostenido, alta demanda residencial y atractivo para compradores internacionales.

Financing Options

View originalView in English
  • Mortgage
own resource bank credit. USDrecurso propio crédito bancario. USD
Donner & Asociados

Donner & Asociados

EB-VC3438
Print Property

Location

Cape Coral, Florida

Featured Properties