LAND FOR SALE IN SIERRA ALTA 10 SECT NATIONAL HIGHWAY MONTERREYTERRENO EN VENTA EN SIERRA ALTA 10 SECT CARRETERA NACIONAL MONTERREY

Sierra Alta 10 Sector, Monterrey, Nuevo León

  • $8,400,000 For Sale
Ver Tour Virtual

Details

  • Type: Lot
  • ID: EB-UJ8341
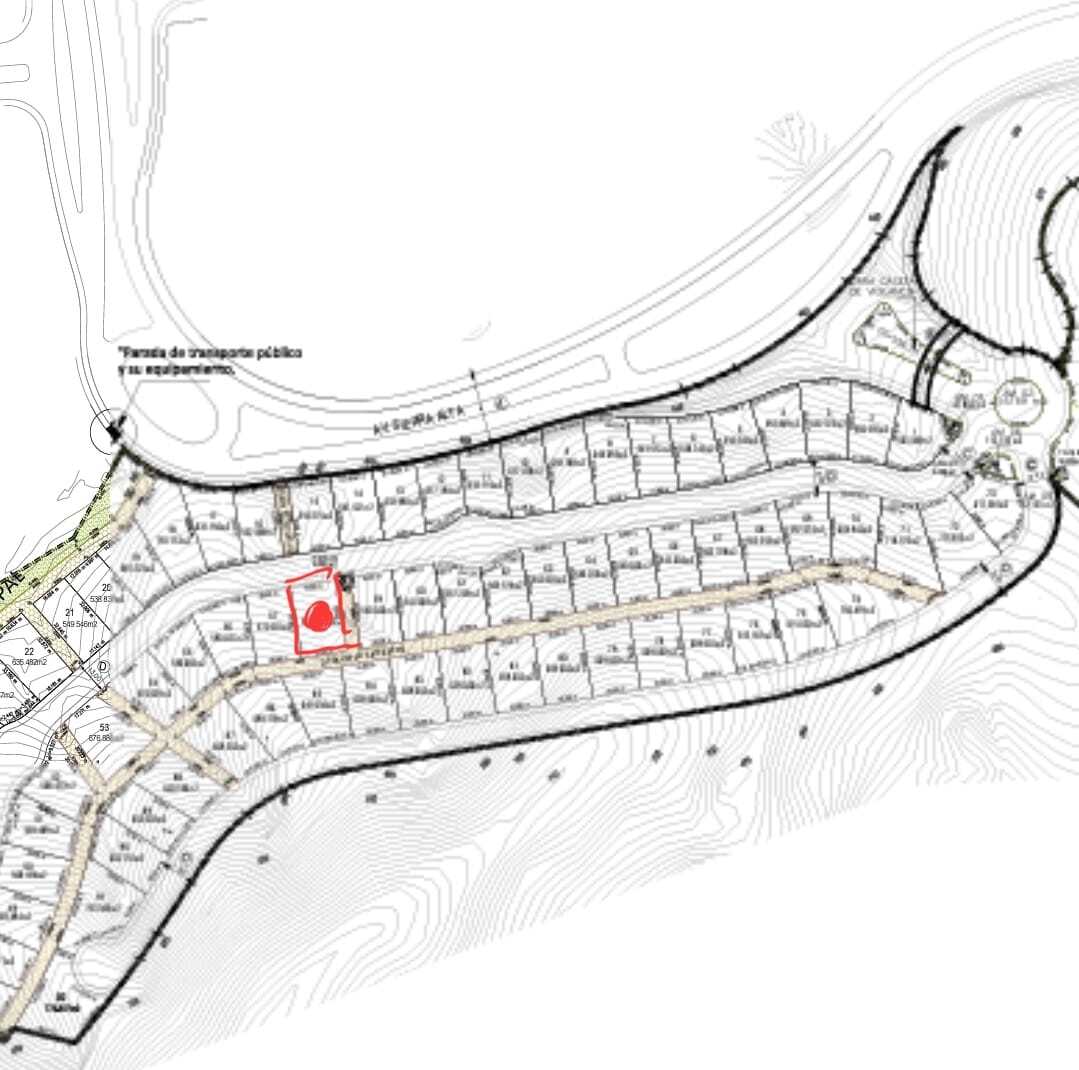
  • Lot Width: 19 m
TERRENO EN VENTA EN SIERRA ALTA 10 SECT CARRETERA NACIONAL MONTERREY
$8,400,000
Terreno 570m²
Frente 19mts

Hermoso terreno con muy bonitas vistas en la zona muy cotizada en Carretera Nacional rodeado de montañas. El terreno en plano y en la parte posterior ligeramente ascendente. Fraccionamiento con acceso controlado 24/7.

Amenities

  • Playground
Donner & Asociados

Donner & Asociados

EB-UJ8341
Print Property

Location

Sierra Alta 10 Sector, Monterrey, Nuevo León

Featured Properties