Industrial Warehouse for Rent 800 m² in Castelli Park Mérida, YucatánRenta Nave Industrial 800 m² en Castelli Park Mérida, Yucatán

Mérida, Mérida, Yucatán

  • $77,200 For Rent
Ver Tour Virtual

Details

  • Type: Industrial Building
  • ID: EB-UF8569
  • Internal ID: 45
  • Age: New
  • Floors: 1
Industrial warehouse in Mérida available for rent, ready to operate in December with all permits in order. Located in Castelli Park, the industrial park with immediate access to the Periférico and the Metropolitan Ring Road, as well as a strategic connection to the main logistics nodes in the southeast: Puerto Progreso, Tren Maya, and Mérida International Airport.

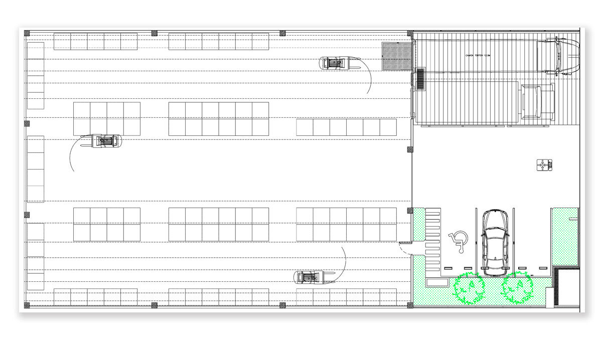
Configurable warehouse with the possibility of integrating executive offices, fire protection systems, and CCTV, ideal for storage, distribution, or logistics use.

Warehouse features:

- 800 m2 private land
- 560 m2 covered
- 240 m2 maneuvering yards and docks
- Maximum height 10m
- 3 independent parking spaces for vehicles
- 2 independent loading and unloading docks in each warehouse
- Ramp for light and heavy vehicles
- High-resistance MR floors
- Independent services per warehouse (water, three-phase electrical connection, fiber optics)
- Maneuvering yards with the possibility of perimeter fencing
- Offices with dining area and sanitary cores (optional)
- Mechanical roll-up curtains

Benefits of the park:

- Ecotechnologies
- First-class urbanization
- Access control
- 24/7 surveillance
- Asphalted roads
- Solar urban lighting
- Rainwater drainage (Recharge of aquifers)
- Fiber optics
- Potable water network
- Operational hotel

In Castelli Park, you not only acquire a strategic investment but also a comprehensive model of unlimited solutions.

Contact us today and schedule your visit.
Nave industrial en Mérida disponible para renta, lista para operar en diciembre con todos los permisos en regla. Ubicada en Castelli Park, el parque industrial con acceso inmediato al Periférico y al Anillo Vial Metropolitano, además de una conexión estratégica con los principales nodos logísticos del sureste: Puerto Progreso, Tren Maya y Aeropuerto Internacional de Mérida.

Nave configurable con posibilidad de integrar oficinas ejecutivas, sistemas contra incendio y CCTV, ideal para uso de almacenamiento, distribución o logística.

Características de la nave:

- 800 m2 terreno privado
- 560 m2 techados
- 240 m2 patios de maniobras y andenes
- Altura máxima 10m
- 3 cajones de estacionamiento independientes para vehículos
- 2 andenes para carga y descarga independientes en cada nave
- Rampa para vehículos ligeros y pesados
- Pisos MR de alta resistencia
- Servicios independientes por nave (agua, acometida eléctrica en tres fases, fibra óptica)
- Patios de maniobras con posibilidad de cerca perimetral
-Oficinas con comedor y núcleos sanitarios (opcional)
- Cortinas enrollables mecánicas

Beneficios del parque:

-Ecotecnologías
- Urbanización de primer nivel
- Control de acceso
- Vigilancia 24/7
- Vialidades con asfalto
- Iluminación urbana solar
- Drenaje pluvial (Recarga de mantos acuíferos)
- Fibra óptica
- Red de agua potable
- Hotel operativo

En Castelli Park no solo adquieres una inversión estratégica, sino un modelo integral de soluciones ilimitadas.

Contáctanos hoy y agenda tu visita.

Amenities

  • Platform
  • Street parking
  • Handicap accessible
  • 24 Hour Security
Donner & Asociados

Donner & Asociados

EB-UF8569
Print Property

Location

Mérida, Mérida, Yucatán

Featured Properties