Commercial Rental in Itzimna for multiple uses, Mérida, YucatánRenta Local Comercial en Itzimna de usos múltiples, Mérida, Yucatán

Itzimna, Mérida, Yucatán

  • $70,000 MXN For Rent
Ver Tour Virtual

Details

  • Type: Retail Space
  • ID: EB-UU7612
  • Internal ID: PTD2104LI1
  • Bathrooms: 4
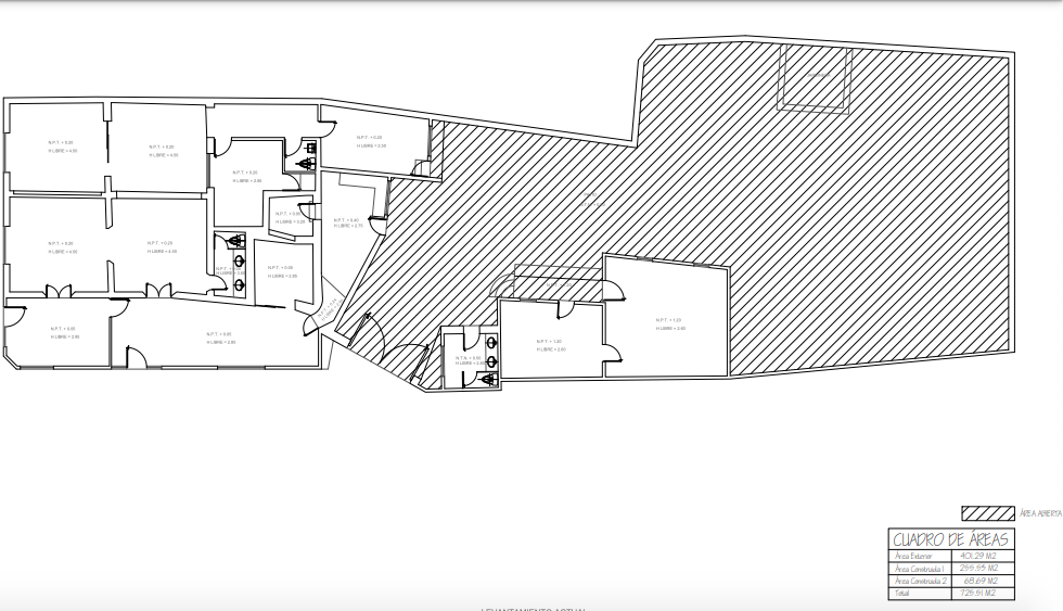
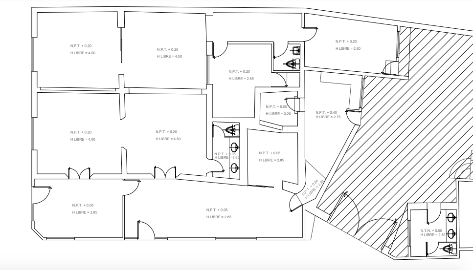
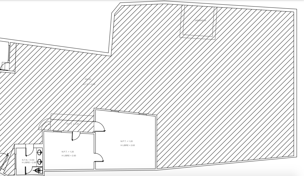
Commercial premises for multiple uses located on a corner in the northern area of Mérida.
It is ideal for a café, a restaurant, furniture store, a gym, a boutique, offices, etc.
It has a total land area of 725 m2.
The size is 325 m2 of construction.
It has 400 m2 of its own parking at the back, fenced and with a gate.
4 bathrooms.
A storage room at the back.
4 rooms.
Kitchen area.
Installation for air conditioning.

Rental price $70,000 pesos.

Some of the interior walls shown in the plan are made of drywall, so they can be removed or relocated according to the client's needs.

Price and availability subject to change without prior notice.
Local comercial de usos múltiples ubicado en esquina en la zona norte de Mérida.
Es ideal para una cafetería, un restaurant, mueblería, un Gimnasio, una Boutique, oficinas, etc.
Cuenta con un terreno de 725 m2 en total.
El tamaño es de 325 m2 de construcción.
Cuenta con 400 m2 de estacionamiento propio en la parte posterior, bardeados y con portón.
4 baños.
una bodega en la parte posterior.
4 estancias.
Área de cocina.
Instalación para aires acondicionados.

Precio de renta $70,000 mil pesos.

Algunos de los muros interiores que se ven en el plano son de tablarroca, por lo que se pueden remover o reubicar según las necesidades del cliente.

Precio y disponibilidad sujetos a cambio sin previo aviso.

Amenities

  • Patio
  • Storge Unit
Donner & Asociados

Donner & Asociados

EB-UU7612
Print Property

Location

Itzimna, Mérida, Yucatán

Featured Properties