Work Patio with OfficesPatio de Trabajo con Oficinas

Playa Norte, Carmen, Campeche

  • $32,000 MXN For Rent
Ver Tour Virtual

Details

  • Type: Industrial Lot
  • ID: EB-UM8571
  • Lot Length: 35 m
  • Lot Width: 15 m
Location:
Near Industrial Port, North Beach

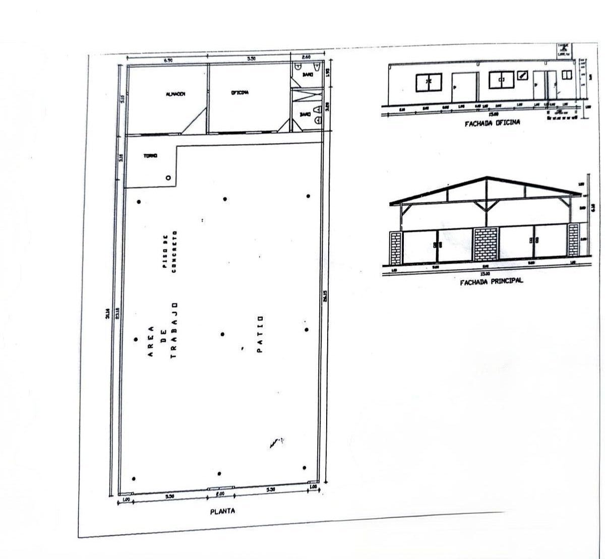
Workyard with Offices

Total area: 525m2
15m front x 35m depth

- Gate
(3.2m high x 5.30m wide)
- Maneuvering yard (Access to Hiab)
(15m x 30m) = 450m2
*including covered area
- Covered area with concrete floor
(7.50m x 17m x 4m) = 128m2
- Warehouse
(7m x 5m) = 35m2
- Office
- Bathrooms
(8m x 5m) = 40m2
*including bathrooms

Rental Price: $32,000
Ubicación:
Cerca de Puerto Industrial, Playa Norte

Patio de Trabajo con Oficinas

Superficie total: 525m2
15m frente x 35m fondo

- Portón
(3.2m alto x 5.30m ancho)
- Patio de maniobras (Acceso a Hiab)
(15mx 30m) = 450m2
*incluyendo área techada
- Area techada con piso de concreto
(7.50m x 17m x4m) = 128m2
- Almacén
(7m x 5m) = 35m2
- Oficina
- Baños
(8m x 5m) = 40m2
*incluyendo baños

Precio de Renta: $32,000

Amenities

  • Street parking
  • Patio
  • Storge Unit
  • Office
Donner & Asociados

Donner & Asociados

EB-UM8571
Print Property

Location

Playa Norte, Carmen, Campeche

Featured Properties