Work Patio with Offices of 525 m2 in Playa NortePatio de Trabajo con Oficinas de 525 m2 en Playa Norte

Playa Norte, Carmen, Campeche

  • $35,000 For Rent
Ver Tour Virtual

Details

  • Type: Industrial Lot
  • ID: EB-UK6834
  • Lot Length: 35 m
  • Lot Width: 15 m
Location: Calle Pulpo between Av. Paseo del Mar and Calle Delfin
North Beach

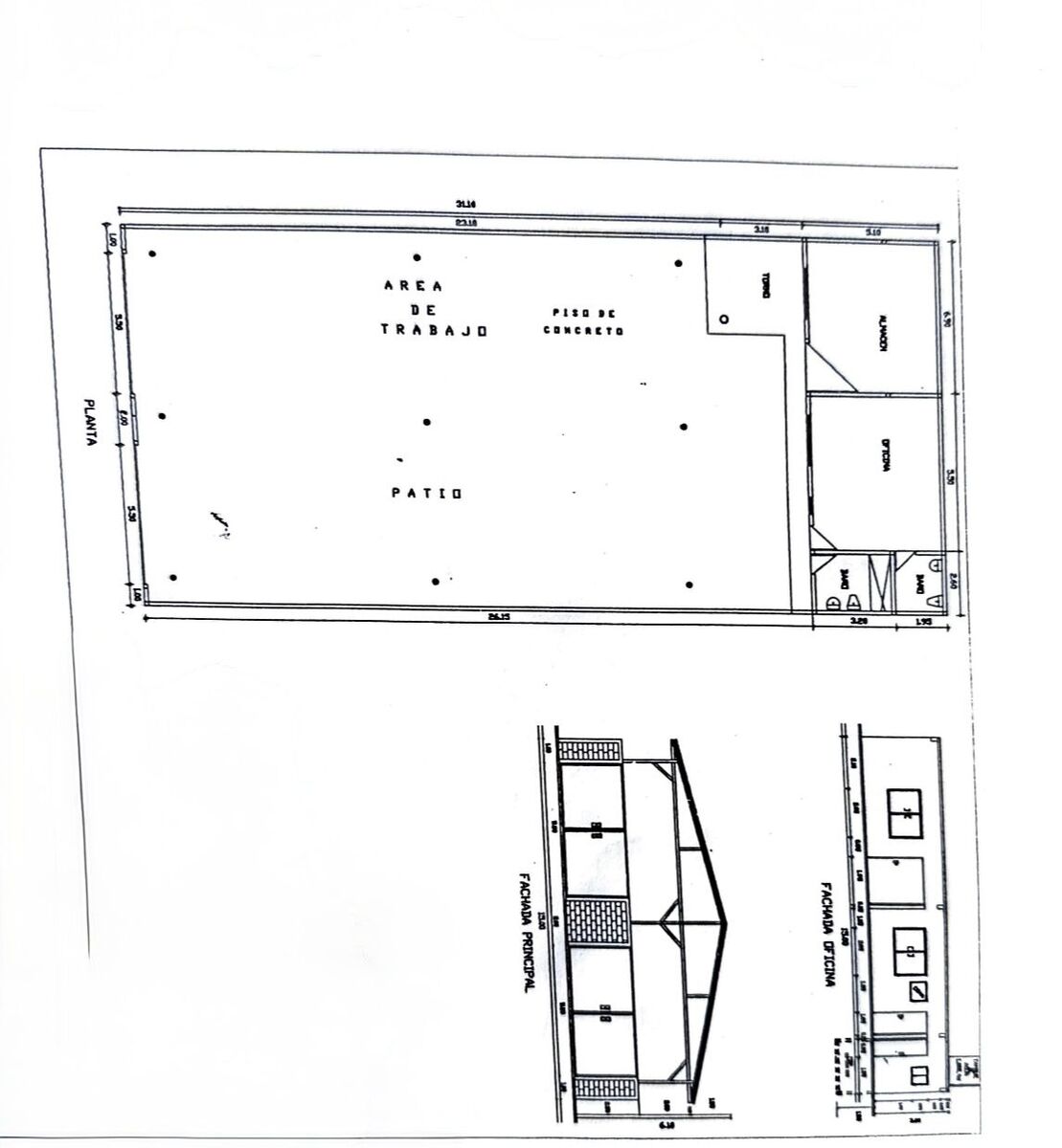
✔️WORK PATIO WITH OFFICES AND COVERED AREA WITH CONCRETE FLOOR

Total area: 525m2 (15 front x 35 back)
• Maneuvering yard (access to hiab)
• Covered area with concrete floor
• Storage
• Office
• Bathrooms
Rental Price: $35,000

📞 984 235 7112
Ubicación: Calle Pulpo entre Av. Paseo del Mar y Calle Delfin
Playa Norte

✔️PATIO DE TRABAJO CON OFICINAS Y AREA TECHADA CON PISO DE CONCRETO

Superficie total: 525m2 (15 frente x 35 fondo)
• Patio de maniobras (acceso a hiab)
• Area techada con piso de concreto
• Almacen
• Oficina
• Baños
Precio de Renta: $35,000

📞 984 235 7112

Amenities

  • Office
Donner & Asociados

Donner & Asociados

EB-UK6834
Print Property

Location

Playa Norte, Carmen, Campeche

Featured Properties