OPPORTUNITY SALE ZETTER BUILDING IN GRAY WORK IN EL COLLIOPORTUNIDAD VENTA EDIFICIO ZETTER EN OBRA GRIS EN EL COLLI

Paseos del Sol, Zapopan, Jalisco

  • $16,000,000 For Sale
Ver Tour Virtual

Details

  • Type: Building
  • ID: EB-UR1207
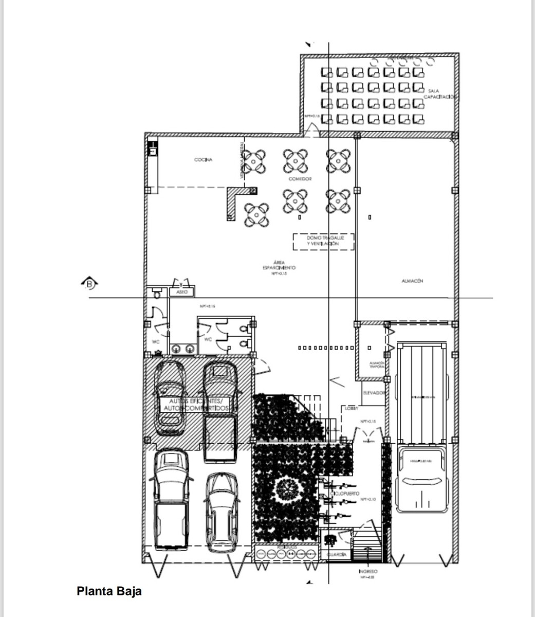
THIS BUILDING WAS DESIGNED AND HAS BEEN INSPECTED TO CERTIFY IT AS A LEED BUILDING.

TO MEET THESE STANDARDS, THE BUILDING HAD TO COMPLY WITH THE FOLLOWING:

* HAVE A PLEASANT VIEW
FOR WHICH A CENTRAL GARDEN WAS DESIGNED ON THE FIRST FLOOR SO THAT FROM ANY POINT OF THE WORK, EVERYONE WOULD HAVE A VIEW OF THE GARDEN.
* ENERGY SAVING
SEVERAL SOLAR CHIMNEYS ARE CONTEMPLATED, THAT IS, TO CREATE NATURAL DRAFTS OF HOT AIR OUTSIDE, WHICH ALLOWS FRESH AIR TO ENTER AND ELIMINATES THE USE OF AIR CONDITIONING.
* LARGE WINDOWS
FOR AN ENVIRONMENT OF NATURAL LIGHT.

THE BUILDING IS IN GRAY WORK; IT NEEDS TO INSTALL A FLOOR OF APPROXIMATELY 120 MT2.

* NEEDS TO BUILD THE ENTRANCE BOOTH.
* MODIFY THE FRONT ENTRANCE FENCE.

THE PROPERTY CURRENTLY HAS A BANK MORTGAGE, BUT THE BANK AGREES TO RELEASE THE MORTGAGE AND SIGN THE SALE OF THE PROPERTY.

BUILDING PLANS:
* CALCULATION MEMORIES ARE AVAILABLE.
* SOIL MECHANICS STUDIES.
* STRUCTURAL PLANS.
* PROJECT RENDERS.
* ETC.

CAPACITY OF WORKING PEOPLE:
* APPROXIMATELY 40 PEOPLE.

THE BUILDING IS PREPARED TO INSTALL AN ELEVATOR.

3 BLOCKS FROM MARIANO OTERO.
3 BLOCKS FROM THE PASEOS DEL SOL SPORTS UNIT.

4%
ESTE EDIFICIO SE DISEÑO Y SE ESTUBO INSPECCIONANDO PARA CERTIFICARLO COMO UN EDIFICIO LEED.

PARA CUMPLIR ESOS ESTANDARES EL EDIFICIO DEBIA CUMPLIR CON LO SIGUIENTE ;

* TENER VISTA AGRADABLE
POR LO CUAL SE DISEÑO UN JARDIN CENTRAL EN EL PRIMER PISO PARA QUE DESDE CUALQUIER PUNTO DE LA OBRA TODOS TUVIERAN VISTA AL JARDIN
* AHORRO DE ENERGIA
SE CONTEMPLAN VARIAS CHIMENEAS SOLARES ES DECIR CREAR TIROS NATURALES DE AIRE CALIENTE AL EXTERIOR CON LO CUAL INGRESA AIRE FRESCO Y SE ELIMINA EL USO DE AIRE ACONDICIONADO
* GRANDES VENTANALES
PARA UN AMBIENTE DE LUZ NATURAL

EL EDIFICIO ESTA EN OBRA GRIS FALTA COLAR UN FIRME DE APROXIMADAMENTE 120 MT2

* FALTA CONSTRUIR LA CASETA DE INGRESO
* MODIFICAR LA BARDA DE INGRESO DEL FRENTE

EL PREDIO EN ESTOS MOMENTOS CUENTA CON UNA HIPOTECA BANCARIA PERO EL BANCO ESTA DE ACUERDO EN LIBERAR LA HIPOTECA Y FIRMAR LA VENTA DEL INMUEBLE

PLANOS DEL EDIFICIO :
* SE CUENTA CON MEMORIAS DE CALCULO
* ESTUDIOS DE MECANICA DE SUELO
* PLANOS ESTRUCTURALES
* RENDERS DEL PROYECTO
* ETC

CAPACIDADE DE PERSONAS LABORANDO
* 40 PERSONAS APROX.

ESTA PREPARADO EL EDIFICIO PARA PONER ELEVADOR

A 3 CUADRAS DE MARIANO OTERO
3 CUADRAS DE LA UNIDAD DEPORTIVA PASEOS DEL SOL


4%

Amenities

  • Covered parking
  • Street parking
  • Garden
  • Patio
  • Roof Garden
  • Terrace
  • Accessibility for elderly
  • Handicap accessible
Donner & Asociados

Donner & Asociados

EB-UR1207
Print Property

Location

Paseos del Sol, Zapopan, Jalisco

Featured Properties