Industrial Warehouse for rent in CuautitlánNave Industrial en renta en Cuautitlán

Cuautitlán Centro, Cuautitlán, Estado de México

  • $175 per m² For Rent
Ver Tour Virtual

Details

  • Type: Warehouse
  • ID: EB-UO1982
  • Expenses: 7%
¡TU BODEGA IDEAL TE ESTÁ ESPERANDO!

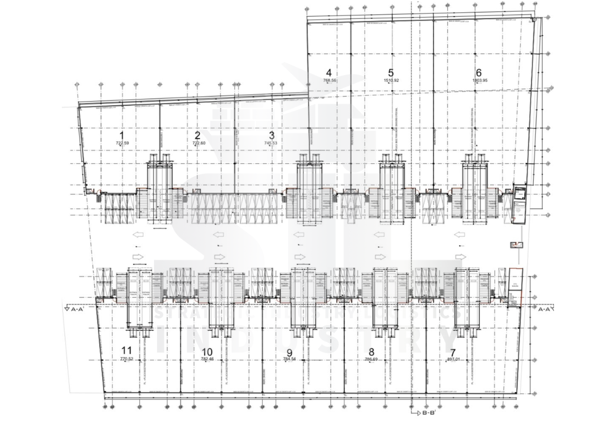
• Área de bodega: 1,803.95 m2
• Patio de maniobras: a disposición
• Piso de alta resistencia
• Altura libre: 12 m
• Opción a oficinas

Operación eficiente:
• Andenes: 2 (opcional rampa niveladora)
• 1 rampa de acceso
• Luz trifásica: 45 KVA´S por módulo

Construcción de calidad:
• Techumbre: Lamina KR-18
• Tipo de muro: Estructura Metálica y muros Tilt-up
• Piso: MR 45

Incluye:

• 3 cisternas (70,000 lts, 2 de 30,000 lts)
• Estacionamiento
• Baños
• Sistema contra incendios: Adaptable

PRECIO: $175/m2 + 7% mtto + IVA


¡Agenda tu visita con 24 hrs de anticipación!

Contáctanos: 55 60 78 71 81
Donner & Asociados

Donner & Asociados

EB-UO1982
Print Property

Location

Cuautitlán Centro, Cuautitlán, Estado de México

Featured Properties