Industrial Warehouse for Rent in LermaNave Industrial en Renta Lerma

El Espino Peralta, Lerma, Estado de México

  • $9.30 USD per m² For Rent
Ver Tour Virtual

Details

  • Type: Industrial Building
  • ID: EB-UK5534
  • Internal ID: GMVB-A5-ECOPARA
Precio de renta: $8.50 USD/m²
Mantenimiento: $0.80 USD/m²

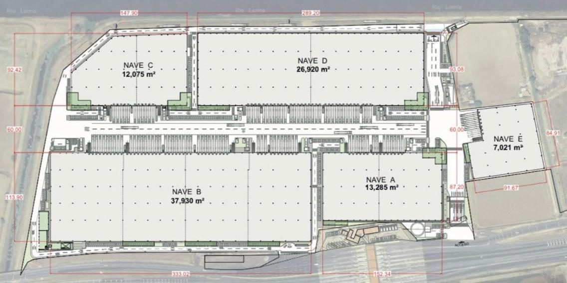
Ubicada dentro de un moderno parque industrial en Lerma, Estado de México, esta nave combina infraestructura de alto nivel con servicios integrales que garantizan eficiencia, seguridad y productividad para cualquier tipo de operación logística, manufacturera o de distribución.

Servicios del parque

Control de accesos y salidas con personal de seguridad 24/7

Paradas de autobús internas por módulo de oficinas

Módulos de sanitarios y cuartos de basura

Ciclovía y estacionamientos para bicicletas y motocicletas

Iluminación exterior en vialidades, patios y áreas comunes

Sistema de tratamiento parcial de aguas residuales

Características de la nave

Estructura: acero con entre ejes de 22.9 m x 16 m

Altura libre: 13.92 m máxima / 11.0 m mínima

Cubierta: lámina engargolada KR-18 con 10% de iluminación natural mediante lámina acrílica traslúcida

Piso: concreto de 15 cm de espesor con capacidad de carga de 85 ton/m²

Muros perimetrales: paneles prefabricados de concreto extruido alveolar

Andenes: equipados con bumpers y cortinas

Iluminación interior: en nave y oficinas

Sistema eléctrico: con tierras físicas y protecciones

Infraestructura complementaria

Conexión a sistema contra incendios con tanque de 250,000 galones

Acometida eléctrica y conexión a gas natural

Red para intercomunicaciones

Cisterna de 15,000 litros por módulo de oficinas

Con una ubicación estratégica sobre el corredor Toluca–CDMX–Bajío, esta nave industrial se posiciona como una opción ideal para empresas que buscan un espacio moderno, seguro y funcional dentro de una zona de alto desarrollo logístico e industrial.

El precio puede cambiar sin previo aviso y sin responsabilidad para el arrendador o para el asesor inmobiliario. El precio de cierre en los arrendamientos, en ningún momento incluye los gastos correspondientes a la póliza jurídica y a la investigación de los arrendatarios
Este inmueble podrá ser arrendado. En cumplimiento de la NOM247, nuestra empresa pone a su disposición el área de atención a clientes donde con gusto le atenderemos: gmoreno@novalandbienesracices.com Así mismo lo invitamos a consultar nuestro aviso de privacidad en nuestra página https://novalandbienesraices.com/aviso-de-privacidad/
Donner & Asociados

Donner & Asociados

EB-UK5534
Print Property

Location

El Espino Peralta, Lerma, Estado de México

Featured Properties