BOAT FOR RENT IN SANTA CATARINANAVE EN RENTA EN SANTA CATARINA

Residencial de La Sierra, Santa Catarina, Nuevo León

  • $155,231.70 For Rent
Ver Tour Virtual

Details

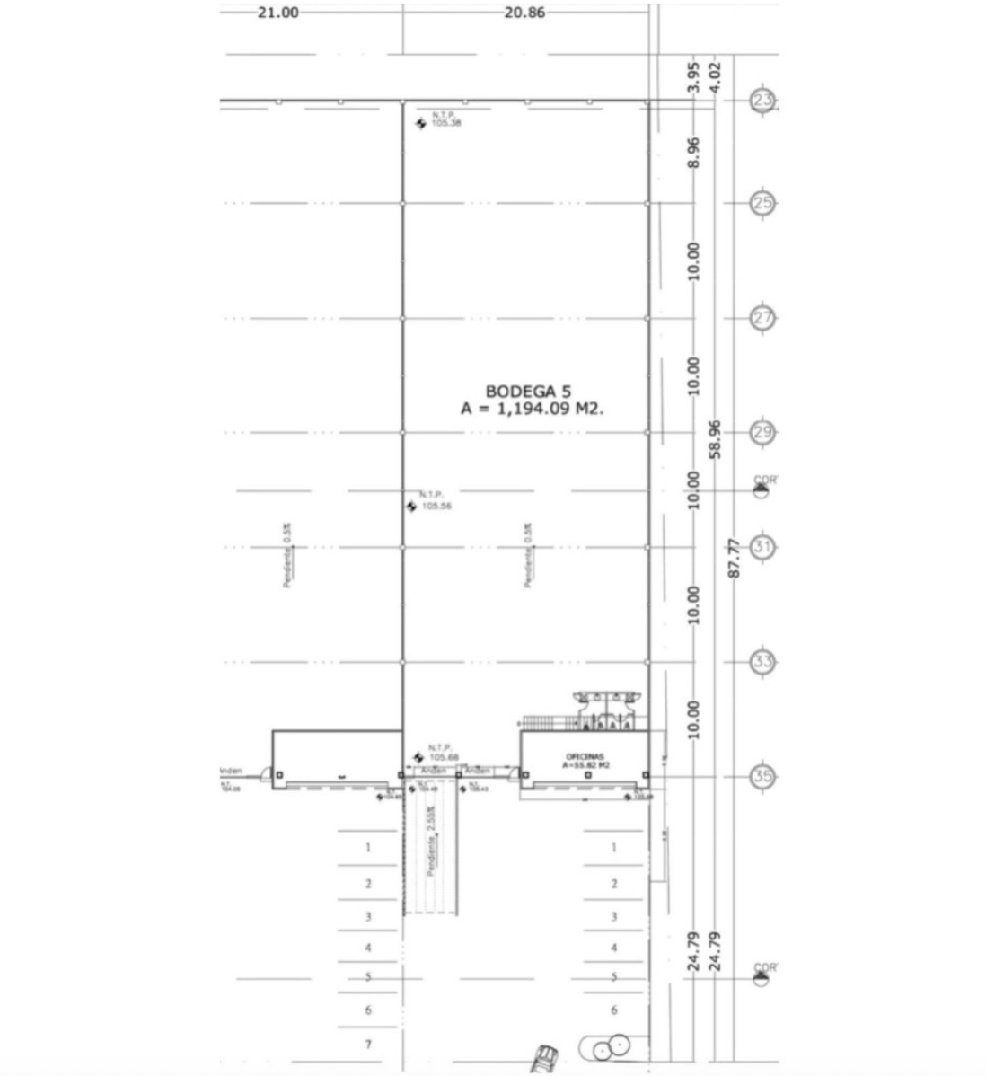
  • Type: Industrial Warehouse
  • ID: EB-UT7549
  • Internal ID: 1340
INDUSTRIAL WAREHOUSE FOR RENT – SANTA CATARINA (EXCELLENT LOCATION)
Located in a strategic area of Santa Catarina, with ideal access for heavy transport and logistics operations.
Minimum contract of 3 years.
Specifications
Walls: Block up to 3 meters, continuing with galvanized sheet
Roof: Galvanized sheet + translucent sheet

Floor (Firm): 15 cm thick
Structure: Concrete and structural steel
Office: 55 m²
Access: 1 dock and 1 ramp per warehouse
NAVE INDUSTRIAL EN RENTA – SANTA CATARINA (EXCELENTE UBICACIÓN)
Ubicada en una zona estratégica de Santa Catarina, con accesos ideales para transporte pesado y operación logística.
Contrato mínimo de 3 años.
Especificaciones
Muros: Block hasta 3 metros, continuando con lámina galvanizada
Techo: Lámina galvanizada + lámina translúcida

Piso (Firme): 15 cm de espesor
Estructura: Concreto y acero estructural
Oficina: 55 m²
Accesos: 1 andén y 1 rampa por bodega

Amenities

  • Platform
  • Ramps
Donner & Asociados

Donner & Asociados

EB-UT7549
Print Property

Location

Residencial de La Sierra, Santa Catarina, Nuevo León

Featured Properties