Industrial Warehouse for rent (divisible or complete) in Cuautitlán

Cuautitlán Centro, Cuautitlán, Estado de México

  • $175 MXN per m² For Rent
Ver Tour Virtual

Details

  • Type: Industrial Building
  • ID: EB-UO2029
  • Expenses: 7%

Description

YOUR IDEAL WINERY IS WAITING FOR YOU!

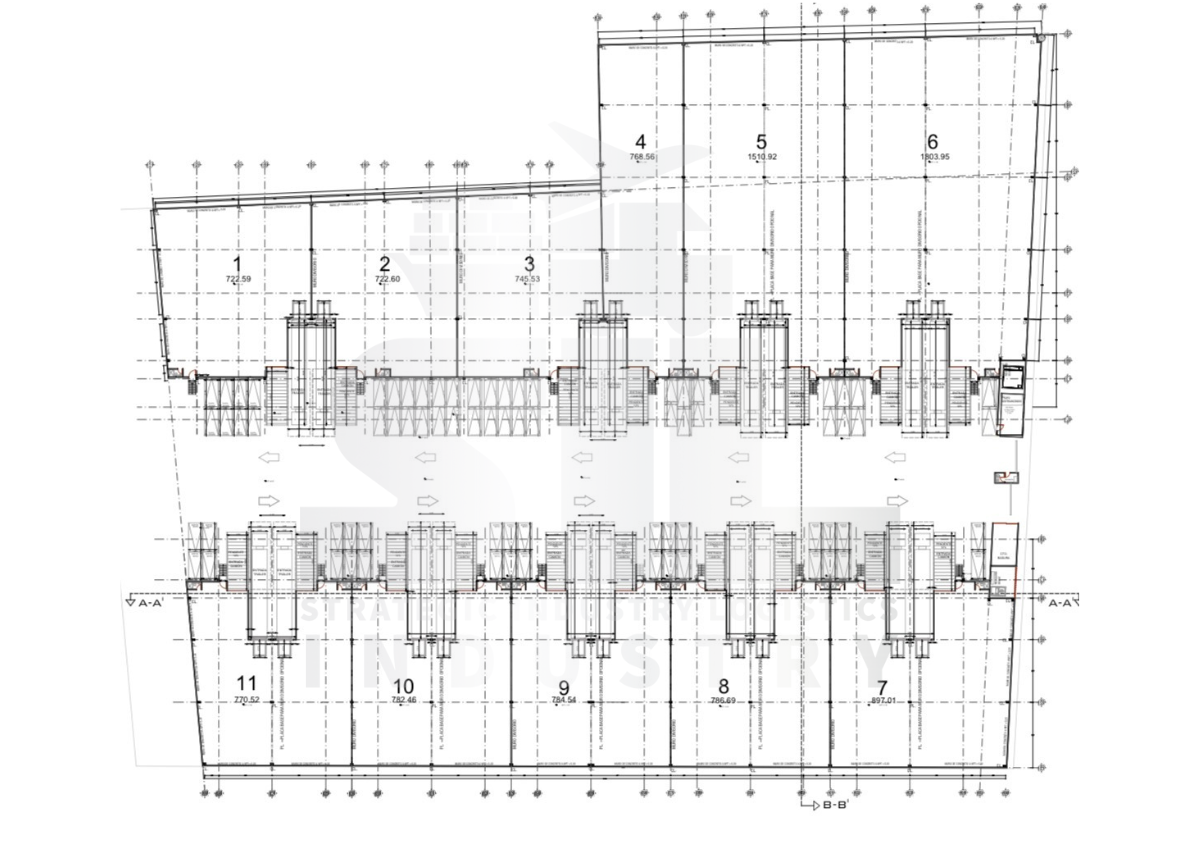
• Warehouse area: 10,295.37m2
• Maneuver yard: available
• High resistance floor
• Free height: 12 m
• Office option

Efficient operation:
• Platforms: 13 (optional leveling ramp)
• 1 access ramp
• Three-phase light: 45 KVA'S per module

Quality Construction:
• Roof: KR-18 Sheet
• Type of wall: Metal Structure and Tilt-up walls
• Floor: MR 45

Includes:

• 3 cisterns (70,000 liters, 2 of 30,000 liters)
• Parking lot
• Bathrooms
• Fire protection system: Adaptable

PRICE: $175/m2 + 7% mtto + VAT


Schedule your visit 24 hours in advance!

Contact us: 55 60 78 71 81
Donner & Asociados

Donner & Asociados

EB-UO2029
Print Property

Location

Cuautitlán Centro, Cuautitlán, Estado de México

Featured Properties