For Sale commercial premises on Av. Líbano in Mérida Yucatán.En Venta local Comercial en Av. Líbano en Mérida Yucatán.

México Norte, Mérida, Yucatán

  • $8,881,048.54 MXN For Sale
Ver Tour Virtual

Details

  • Type: Retail Space
  • ID: EB-UK8674
  • Age: New
  • Floor: ground_floor
For Sale Commercial premises on one of the busiest avenues in Mérida Yucatán.

Commercial premises located in a tower with mixed-use zoning, promoting a cosmopolitan lifestyle under the ALL IN ONE concept, bringing together the best real estate investment options in one place.

It has an excellent location, very close to:
- 4.5 km from shopping plazas like Galerías and Harbour, restaurants, banks, gyms, cinemas, etc.
- 3.5 km from Paseo Montejo
- 3.5 km from Montebello
- 4 km from Plaza Altabrisa and UPTOWN
- 3.6 km from City Center

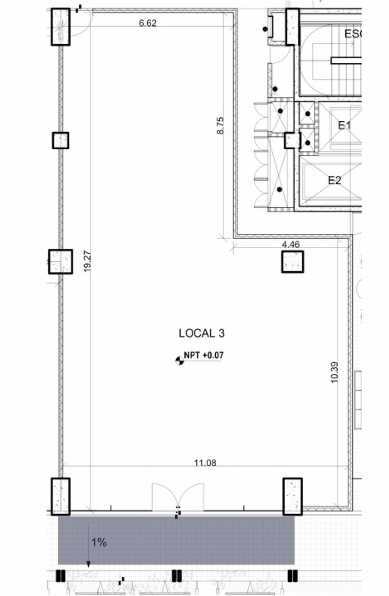
- GROUND FLOOR LC 03
- has 181 m2
- terrace 12.97 m2 Total m2: 243.97

FEATURES
- Floor finishes: Firm concrete with apparent final finish.
- Wall finishes: Reinforced concrete column, calculated according to structural engineer with apparent final finish.
- Partition walls of 7 cm thick drywall with apparent final finish.
- Ceiling finishes: Reinforced concrete slab, according to structural calculation, apparent final finish.
- Exterior facade: Exterior frame made of fixed glass 6 mm thick.

Price:
$8,881,048.54

PAYMENT METHODS
- Down payment: $2,220,262.13
- Balance against deed $7,770,917.47
DELIVERY: December 2025

Own resources or BANK CREDIT accepted.
En Venta Local comercial en una de las avenidas mas transitadas de Mérida Yucatán.

Local comercial ubicado en una torre con uso de suelo mixto, que promueve una vida cosmopolita bajo el concepto ALL IN ONE, reuniendo en un solo lugar las mejores opciones de inversión inmobiliaria

Cuenta con excelente ubicación, muy cerca de:
-A 4.5 km de Plazas comerciales como Galerìas y Harbour, restaurantes, bancos, gimnasios, cines, etc
-A 3.5 km de Paseo Montejo
-A3.5 km de Montebello
-a 4 km de Plaza Altabrisa y UPTOWN
-A 3.6 KM de City Center

-PLANTA BAJA LC 03
-cuenta con 181 m2
-terraza 12.97 m2 Total m2: 243.97

CARACTERÌSTICAS
-Acabados en piso: Firme a base de concreto acabado final aparente.
-Acabados en muros: Columna de concreto armado, cálculo según estructurista con acabado final aparente.
-Muros divisorios de tablaroca de 7 cms de espesor con acabado final aparente.
-Acabados en plafón: Losa de concreto reforzada, según cálculo estructural, acabado final aparente.
-Fachada exterior: Cancel exterior formado por fijos de vidrio de 6 mm de espesor

Precio:
$8,881,048.54

FORMAS DE PAGO
-Enganche: $2,220,262.13
-Saldo contra escritura $7,770,917.47
ENTREGA: Diciembre 2025

Se acepta RECURSO PROPIO o CRÈDITO BANCARIO

Amenities

  • Covered parking
  • Street parking
  • Terrace
  • Closed-Circuit Security System
  • Elevator
  • Ground Floor
Donner & Asociados

Donner & Asociados

EB-UK8674
Print Property

Location

México Norte, Mérida, Yucatán

Featured Properties