San Rafael Commercial BuildingEdificio comercial San Rafael

San Rafael, Cuauhtémoc, Ciudad de México

  • $105,000,000 MXN For Sale
Ver Tour Virtual

Details

  • Type: Building
  • ID: EB-US6818
  • Floors: 3
Building for offices and companies.
With 2,400 m2 in 2 building bodies.
3 Levels (Ground floor, First and second floor).
18 parking spaces.

Roads and means of transport:
15 mins from Reforma and Polanco
2 Streets from the inner circuit.
Av Insurgentes and Eje 1 Norte.
Metro San Cosme and Metro Norma.
Metrobus Buenavista Station line 2.
Suburban Train in Buenavista

General Infrastructure:
Medium Voltage Electrical Substation
Power Plants (2)
Electrical Parallel Board
Fire Alarm
Internal Seismic Alarm
CCTV with recording
Vehicle lock with barrier
24-hour armored surveillance booth
Elevator for 7 people
Physical and electronic grounding system
Lightning protection system
Access controlled by smart card
Centralized Alarm (Alarm Center)
Lockers for entry-exit personnel
Centralized Air Conditioning and Mini Splits
Water tank and pressurized water system
2 Storage rooms on the roof and parking
Access turnstiles
Dining room with kitchenette and industrial refrigerator
Storage warehouse in parking
Mezzanine area for multiple uses with bathrooms

DISTRIBUTION:
First Floor MAIN BODY
Surface:
- 410 Usable square meters
- 117 Work positions (1.0 x 60 x 1.10)
- 5 Closed offices with 16 workspaces (various sizes)
- Raised False Floor
- 1 Access by elevator from
Parking
- 1 Access by main staircase from
Main Entrance
- 1 Access by secondary staircase from
Parking
- Women's bathrooms (4) and men's bathroom with dry urinals

First Floor ANNEX BODY
Surface:
- 168 Usable square meters
- 70 Work positions (1.0 x 60 x 1.10)
- 3 "L" type managerial desks
- 2 Closed offices
- Raised False Floor
- 1 Access by main staircase from Main Entrance
- 1 Access by secondary staircase from
Parking

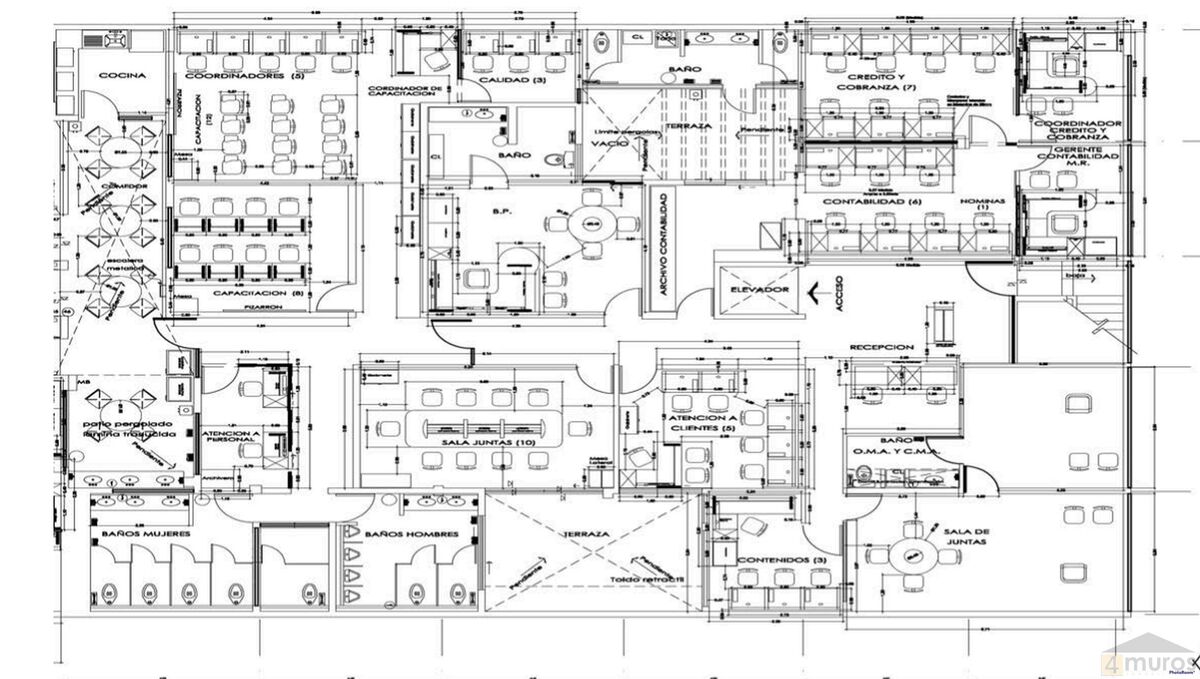
Second floor MAIN BODY
Surface:
- 410 Usable square meters
- 61 Work positions (1.0 x 60 x 1.10)
- Divided into:
- 8 Open stations
- 1 Open training room for 12
- 1 Closed training room for 8
- 2 Private offices for executives
- 2 Open rooms for 13 people
- 1 Meeting room for 10 to 14 people
- 1 Closed office for 5 people
- 1 Private office for 1 person
- 1 Executive office with Medium Meeting Room and
Private Bathroom Level Management
- 1 Large Executive Office with Meeting Room Level
Management
- 1 Medium Executive Office with bathroom
- Access by main staircase from Main Entrance
- Access by elevator

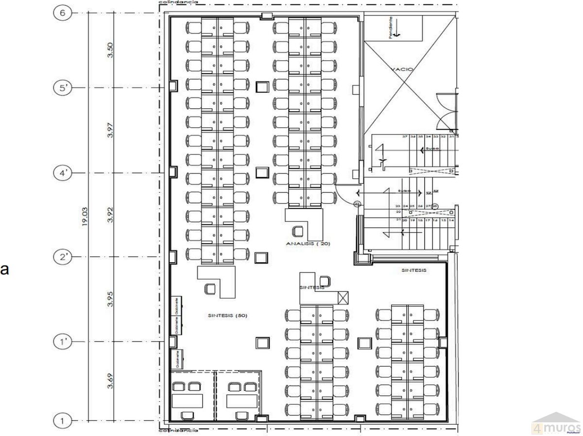
Second floor ANNEX BODY
Surface:
- 168 Usable square meters
- 76 Work positions (1.0 x 60 x 1.10)
- 2 Closed managerial offices
- Raised False Floor
- 1 Access by main staircase from Main Entrance
- 1 Access by secondary staircase from
Parking
Edificio para oficinas y empresas.
Con 2,400 m2 en 2 cuerpos de edificio.
3 Niveles (PB, Primer y segundo piso).
18 cajones de estacionamento.

Vialidades y medios de transporte:
15 mins de Reforma y Polanco
2 Calles de Circuito interior.
Av Insurgentes y Eje 1 Norte.
Metro San Cosme y Metro Norma.
Metrobus Estación Buenavista línea 2.
Tren Suburbano en Buenavista

Infraestructura General:
Subestación Eléctrica de Media Tensión
Plantas de Luz (2)
Tablero de Paralelamiento Eléctrico
Alarma Contra Incendio
Alarma Sismíca Interna
CCTV con grabación
Exclusa vehicular con barrera
Caseta blindada de Vigilancia 24 horas
Elevador para 7 personas
Sistema de tierras físicas y electrónicas
Sistema para rayos
Acceso controlado por tarjeta inteligente
Alarma Centralizada (Central de Alarmas)
Lockers para personal de entrada por salida
Aire Acondicionado Centralizado y Mini Splits
Cisterna de agua y sistema presurizado de agua
2 Bodegas en azotea y estacionamiento
Torniquetes de acceso
Comedor con cocineta y refrigerador industrial
Bodega de almacén en estacionamiento
Zona de entrepiso para usos múltiples con baños

DISTRIBUCIÓN:
Primer Piso CUERPO PRINCIPAL
Superficie:
- 410 Metros cuadrados utilizables
- 117 Posiciones de trabajo (1.0 x 60 x
1.10)
- 5 Oficinas cerradas con 16 espacios de
trabajo (varias medidas)
- Piso Falso Elevado
- 1 Acceso por elevador desde
Estacionamiento
- 1 Acceso por escalera principal desde
Entrada Principal
- 1 Acceso por escalera secundaria desde
Estacionamiento
- Baños de mujeres (4) y baño de
hombres con mingitorios secos

Primer Piso CUERPO ANEXO
Superficie:
- 168 Metros cuadrados utilizables
- 70 Posiciones de trabajo (1.0 x 60 x 1.10)
- 3 Escritorios nivel jefatura tipo “L”
- 2 Oficinas cerradas
- Piso Falso Elevado
- 1 Acceso por escalera principal desde Entrada
Principal
- 1 Acceso por escalera secundaria desde
Estacionamiento

Segundo piso CUERPO PRINCIPAL
Superficie:
- 410 Metros cuadrados utilizables
- 61 Posiciones de trabajo (1.0 x 60 x 1.10)
- Divididas en:
- 8 Estaciones abiertas
- 1 Sala abierta de capacitación para 12
- 1 Sala cerrada de capacitación para 8
- 2 Privados para ejecutivos
- 2 Salas abiertas para 13 personas
- 1 Sala de Juntas para 10 a 14 personas
- 1 Oficina cerrada para 5 personas
- 1 Privado para 1 Persona
- 1 Oficina Ejecutiva con Sala de Juntas Mediana y
Baño Privado Nivel Dirección
- 1 Oficina Ejecutiva Grande con Sala de Juntas Nivel
Dirección
- 1 Oficina Ejecutiva Mediana con baño
- Acceso por escalera principal desde Entrada Principal
- Acceso por elevador

Segundo piso CUERPO ANEXO
Superficie:
- 168 Metros cuadrados utilizables
- 76 Posiciones de trabajo (1.0 x 60 x 1.10)
- 2 Oficinas gerenciales cerradas
- Piso Falso Elevado
- 1 Acceso por escalera principal desde Entrada
Principal
- 1 Acceso por escalera secundaria desde
Estacionamiento
Donner & Asociados

Donner & Asociados

EB-US6818
Print Property

Location

San Rafael, Cuauhtémoc, Ciudad de México

Featured Properties