Apartment for sale in Bosques Clavería, Azcapotzalco - Brand newDepartamento en venta Bosques Clavería, Azcapotzalco - Para estrenar

Clavería, Azcapotzalco, Ciudad de México

  • $3,680,000 MXN For Sale
Ver Tour Virtual

Details

  • Type: Apartment
  • ID: EB-UP6231
  • Age: New
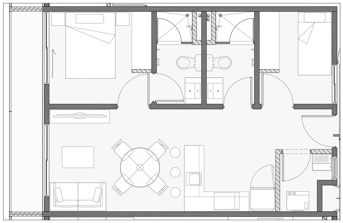
  • Bedrooms: 2 bedrooms
  • Bathrooms: 2
  • Floor: 3
(MAG) In an elegant and modern development, this 65 m2 apartment is located.
Excellent place to live, surrounded by important roads.
The development has a cutting-edge design and a careful selection of materials.
It has amenities such as:
Gym
Event hall
Surveillance and controlled access 24 hours.

Features:

2 bedrooms
2 full bathrooms
1 parking space
65 m2
Level 3
Exterior
(MAG) En un elegante y moderno desarrollo se encuentra este departamento de 65 m2.
Excelente lugar para vivir, rodeado de vialidades importantes.
El desarrollo tiene un diseño vanguardista y una cuidadosa selección de materiales.
Cuenta con amenidades como:
Gimnasio
Salón de eventos
Vigilancia y acceso controlado las 24 hrs.

Características:

2 recámaras
2 baños completos
1 estacionamiento
65 m2
Nivel 3
Exterior

Financing Options

View originalView in English
  • Mortgage
  • FOVISSSTE
  • INFONAVIT / COFINAVIT

Amenities

  • Cistern
  • Covered parking
  • Street parking
  • Kitchen
  • Fitted Kitchen
  • Elevator
  • 24 Hour Security
  • Pets allowed
  • Smoking allowed
  • Gym
  • Multipurpose room
Donner & Asociados

Donner & Asociados

EB-UP6231
Print Property

Location

Clavería, Azcapotzalco, Ciudad de México

Featured Properties