Furnished apartment for rent in Fray Junípero Serra QuerétaroDepartamento amueblado en renta en Fray Junípero Serra Querétaro

Fray Junípero Serra, Querétaro, Querétaro

  • $17,500 For Rent
Ver Tour Virtual

Details

  • Type: Apartment
  • ID: EB-UQ9332
  • Age: 2023
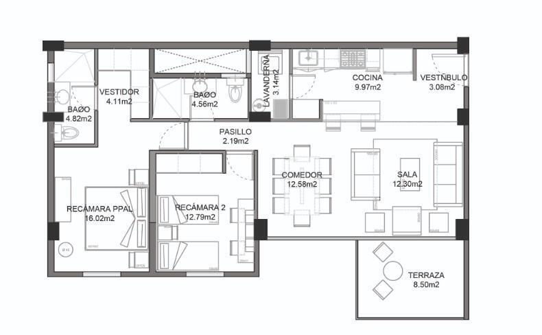
  • Bedrooms: 2 bedrooms
  • Bathrooms: 2
  • Floor: 11
Furnished apartment for rent.

Features:
Living room with sofa and two individual armchairs
Dining room with round table and 4 chairs
Kitchen with breakfast bar and two stools
Terrace with two chairs
Laundry room
Full bathroom
Secondary bedroom with double bed
Master bedroom with dressing room and bathroom equipped with King size bed
Storage room

The rent includes maintenance

Amenities:
Large multipurpose room,
Children's playroom,
Sports Bar with Billiards,
Pool with Pool Bar,
Barbecue area,
WiFi Palapas,
Running track,
Padel tennis court,
Soccer and basketball court,
Fully equipped gym,
Children's playground,
Coworking area,
Spacious gardens,
Pet Friendly,
Security booth with 24-hour security.

Requirements:
Rental requirements
Security deposit of one month's rent
Payment of the current month at the beginning of the contract
Legal policy with a joint obligor

Price subject to change without prior notice and according to availability.
Departamento amueblado en renta.

Características:
Sala con sofa y dos sillones individuales
comedor con mesa redonda y 4 sillas
cocina con barra desayunador y dos bancos
Terraza con dos sillas
Lavandería
Baño completo
Recamara secundaria con cama matrimonial
Recamara principal con vestidor y baño equipada con cama King size
Bodega

La renta incluye mantenimiento

Amenidades :
Amplió salón de usos múltiples,
Ludoteca,
Sports Bar con Billar,
Alberca con Pool Bar,
Área de Asadores,
Palapas WiFi,
Pista de Correr,
Cancha de pádel tenis,
Cancha de futbol y baloncesto,
Gimnasio totalmente equipado,
Juegos infantiles,
Area de coworking,
Amplios Jardines,
Pet Friendly,
Caseta de vigilancia con seguridad las 24 horas.

Requisitos :
Requisitos de renta
Depósito en garantía de un mes de renta
Pago del mes corriente, al inicio del contrato
Póliza Jurídica con obligado solidario

Precio sujeto a cambios sin previo aviso y de acuerdo a disponibilidad.

Amenities

  • Balcony
  • Furnished
  • Kitchen
  • Equipped Kitchen
  • Fitted Kitchen
  • Elevator
  • Private housing development
  • 24 Hour Security
  • Single story
  • Pool
  • Playground
  • Gym
  • Games Room
  • Multipurpose room
Donner & Asociados

Donner & Asociados

EB-UQ9332
Print Property

Location

Fray Junípero Serra, Querétaro, Querétaro

Featured Properties