HOUSE FOR SALE IN THE CENTER OF TONALÁ (MIXED USE)CASA EN VENTA EN EL CENTRO DE TONALÁ (USO MIXTO)

Tonalá Centro, Tonalá, Jalisco

  • $5,790,000 MXN For Sale
Ver Tour Virtual

Details

  • Type: House with Commercial Use
  • ID: EB-VL8699
  • Age: 1980
  • Bedrooms: 5 bedrooms
  • Bathrooms: 3
  • Half Baths: 1
  • Lot Length: 10 m
  • Lot Width: 47 m
House with mixed land use in the heart of Tonalá. Highly commercial location, on a vehicular and pedestrian walkway, next to an emblematic temple "SANTIAGO APÓSTOL" and surrounded by a constant flow of people.

Key features:
• House from the 70s
• Functional, habitable, and ideal for a renovation project.
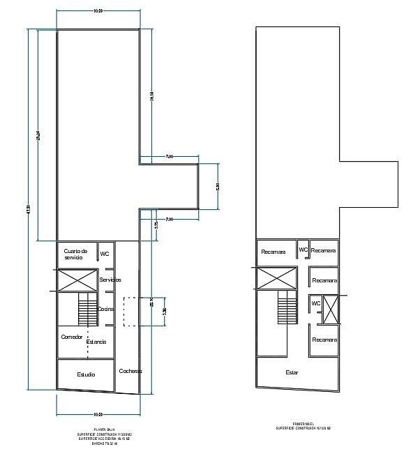
• 275 m² of construction on 2 levels
• 300 m² of rear land
• Very spacious interior spaces
• Mixed land use
• Area with markets on Thursdays and Sundays
• High value in location and land.

Ideal for:
• Commerce, Warehouse, Subletting by units
• Restaurant
• Government Offices
• Mixed project (commercial space + housing + building)

Distribution Ground Floor:
Studio with option for commercial space, half bathroom, kitchen with large pantry, laundry and service patio, service bedroom with full bathroom, ornamental garden area.

Distribution Upper Floor:
Family room/Study, 4 Bedrooms and 2 full Bathrooms.
asa con uso de suelo MIXTO en pleno Centro de Tonalá. Ubicación altamente comercial, sobre andador vehicular y peatonal, al costado de un templo emblemático "SANTIAGO APÓSTOL" y rodeado de flujo constante de personas.

Características clave:
• Casa de los 70’s
• Funcional, Habitable, e ideal para proyecto de renovación.
• 275 m² de construcción en 2 niveles
• 300 m² de terreno posterior
• Espacios interiores muy amplios
• Uso de suelo mixto
• Zona con tianguis jueves y domingos
• Alto valor en ubicación y terreno.

Ideal para:
• Comercio, Bodega, Subarrendamiento por unidades
• Restaurante
• Oficinas de Gobierno
• Proyecto mixto (local + vivienda + edificación)

Distribución PB:
Estudio con opción a local, medio baño, cocina con gran alacena, patio de lavado y de servicio, recámara de servicio con baño completo, área de jardin para ornato.

Distribución PA:
Salón familiar/Estudio, 4 Recámaras y 2 Baños completos.

Financing Options

View originalView in English
An Approved Infonavit Appraisal was carried outSe realizó un Avalúo Infonavit Aprobado

Amenities

  • Balcony
  • Covered parking
  • Garden
  • Patio
  • Storge Unit
  • Kitchen
  • Service Room
  • Double story
  • Study
  • Office
  • Ground floor bedroom
  • Pets allowed
  • Smoking allowed
Donner & Asociados

Donner & Asociados

EB-VL8699
Print Property

Location

Tonalá Centro, Tonalá, Jalisco

Featured Properties