Bodegas en Venta y Renta en Paradiso Logipark (Lazaro Cárdenas)

Del Fresno 1a. Sección, Guadalajara, Jalisco

  • $20,181,760 For Sale
  • $122,982.60 For Rent
Ver Tour Virtual

Details

  • Type: Commercial Storage Unit
  • ID: EB-UT4735
  • Age: New
  • Lot Length: 40.58 m
  • Lot Width: 16.7 m
  • Floors: 1
Features:
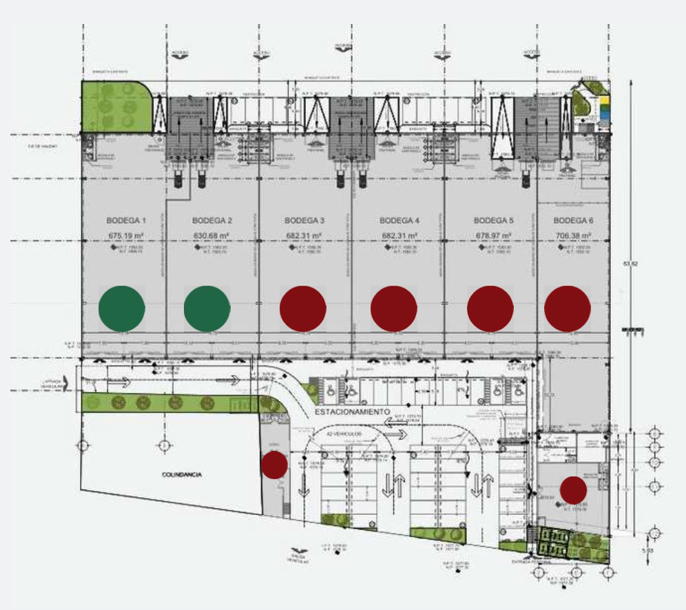
* Warehouse 1: 675.19 sq. meters
* Warehouse 2: 630.68 sq. meters
Sale Price: $32,000 per sq. meter
Rental Price: $195 per sq. meter

Description:
Warehouses for sale and rent in an industrial park with an unparalleled location on Av Lázaro Cárdenas, with only 6 warehouses and 2 commercial premises;

Each warehouse includes:
- Storage with point of sale
- 24/7 security
- Parking spaces
- Dock with ramp
- Advertising totem
- Fire protection system
- Thermal insulation
Características:
* Bodega 1: 675.19 mts2
* Bodega 2: 630.68 mts2
Precio de Venta: $32,000 x mt2
Precio de Renta: $195 x mt2


Descripción:
Bodegas en venta y renta en parque industrial con inigualable ubicación sobre Av Lázaro Cárdenas, de tan solo 6 bodegas y 2 locales comerciales;

Cada bodega incluye:
- Almacenamiento con punto de venta
- Seguridad 24/7
- Cajones de estacionamiento
- Andén con rampa
- Tótem publicitario
- Red contra incendios
- Aislamiento térmico

Amenities

  • Platform
  • Cistern
  • Street parking
  • Loading dock
  • Patio
  • Storge Unit
  • Ground Floor
  • Door man
  • 24 Hour Security
  • Smoking allowed
  • Non-smoking
Donner & Asociados

Donner & Asociados

EB-UT4735
Print Property

Location

Del Fresno 1a. Sección, Guadalajara, Jalisco

Featured Properties