BOAT FOR RENT AND SALE – Spacious and Functional SpacesNAVE EN RENTA Y VENTA – Espacios Amplios y Funcionales

Zona Industrial, San Luis Potosí, San Luis Potosí

  • $17,000,000 MXN For Sale
  • $114,000 MXN For Rent
Ver Tour Virtual

Details

  • Type: Industrial Building
  • ID: EB-QH6151
BOAT FOR RENT AND SALE – Spacious and Functional Spaces

📍 Strategic Location:

Federal Electricity Commission Street, between Axis 134 and Axis 136

📐 Features:

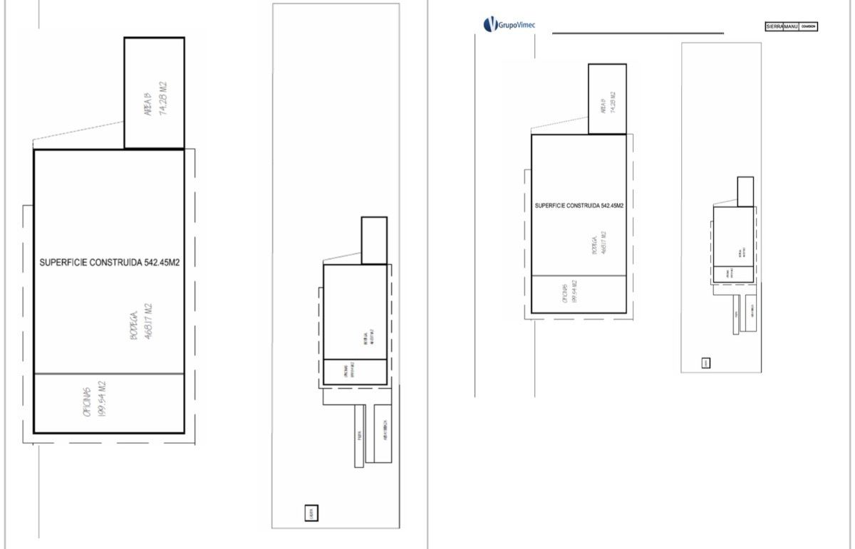
Total area: 4,029 m² (43,700 ft²)
Office area: 199 m²
Warehouse area: 468 m²
Terrace included

🔹 Versatile spaces ideal for storage, logistics, or industry.
🔹 Excellent connectivity and easy access to main roads.

Contact us for more information or to schedule a visit!
NAVE EN RENTA Y VENTA – Espacios Amplios y Funcionales

📍 Ubicación Estratégica:

Calle Comisión Federal de Electricidad, entre Eje 134 y Eje 136

📐 Características:

Área total: 4,029 m² (43,700 ft²)
Área de oficinas: 199 m²
Área de bodega: 468 m²
Terraza incluida

🔹 Espacios versátiles ideales para almacenamiento, logística o industria.
🔹 Excelente conectividad y fácil acceso a vialidades principales.

¡Contáctanos para más información o agendar una visita!

Amenities

  • Storge Unit
  • Office
  • Platform
  • Street parking
  • Air conditioning
  • Pets allowed
  • Smoking allowed
Donner & Asociados

Donner & Asociados

EB-QH6151
Print Property

Location

Zona Industrial, San Luis Potosí, San Luis Potosí

Featured Properties