HOUSE FOR SALE IN LOMA BONITA, NATIONAL HIGHWAYCASA EN VENTA EN LOMA BONITA, CARRETERA NACIONAL

Loma Bonita, Monterrey, Nuevo León

  • $15,500,000 For Sale
Ver Tour Virtual

Details

  • Type: House
  • ID: EB-UT8354
  • Age: Under Construction
  • Bedrooms: 4 bedrooms
  • Bathrooms: 5
  • Half Baths: 1
Beautiful house for pre-sale located in a private subdivision entering Camino al Diente, with security, amenities, and panoramic views. Currently, the foundation is being constructed.

373m2 of land
502m2 of construction
3 levels
3 bedrooms with bathroom and dressing room, possible to have 5 bedrooms
Located at the end of the subdivision, in a closed street with panoramic views
Thermal insulation in walls and slabs
LED lighting
3" glass filter watercolor frames
Cistern

GROUND FLOOR:
Double height entrance hall
Spacious kitchen
Living-dining room
Study with the option to be a bedroom with bathroom
Guest bathroom
Garage for 3 cars
Front garden

UPPER FLOOR:
3 bedrooms with full bathroom and dressing room (2 bedrooms with balcony and views)
Laundry room and linen closet

BASEMENT:
Social terrace with grill and garden
Game room
Guest bedroom (multi-purpose)
1 full bathroom
Service room with full bathroom

Pre-sale price: $15,500,000
Payment facilities
Delivery June 2026
Hermosa casa en preventa ubicada en fraccionamiento privado entrando a Camino al Diente, con vigilancia, amenidades, y vistas panorámicas. Actualmente se esta construyendo cimentacion

373m2 de terreno
502m2 de construccion
3 niveles
3 recamaras con baño y vestidor posible a que sean 5 recamaras
Ubicada al terminar el fraccionamiento, en calle cerrada y vistas panorámicas
Aislamiento termico en muros y losas
Ilumincacion led
Canceleria acuarela 3" vidrio filtrasol
Cisterna

PLANTA BAJA:
Recibidor doble altura
Cocina amplia
Sala comedor
Estudio con opcion a ser recamara con baño
Baño de visitas
Cochera para 3 autos
Jardin frontal

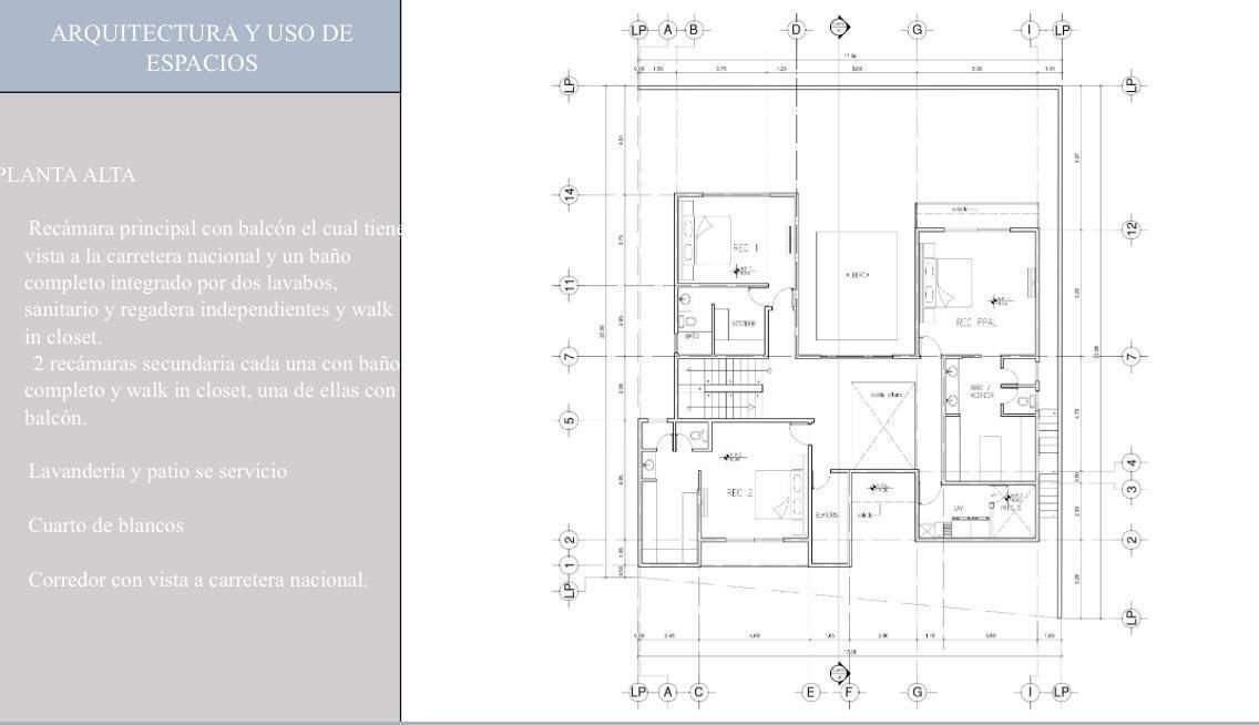
PLANTA ALTA:[
3 recamaras con baño completo y vestidor (2 recamaras con balcon y vistas)
Lavanderia y closet de blancos

SOTANO:
Terraza social con asador y jardin
Salon de juegos
Recamara de visitas (multiusos)
1 Baño completo
Cuarto de servicio con baño completo

Precio de preventa: $15,500,000
Facilidades de pagos
entrega junio 2026

Amenities

  • Balcony
  • Garden
  • Patio
  • Terrace
  • Pool
Donner & Asociados

Donner & Asociados

EB-UT8354
Print Property

Location

Loma Bonita, Monterrey, Nuevo León

Featured Properties