Donner & Asociados

  • 322111162
  • ryan-donner-y-asociados.easybroker.com

VENTA TERRENO HABITACIONAL JURIQUILLA VILAS DEL MESÓN

Juriquilla, Querétaro

$4,200 per m² For Sale

  • 8,342.77 m² Lot Size
  • EB-HS6132 ID
Description

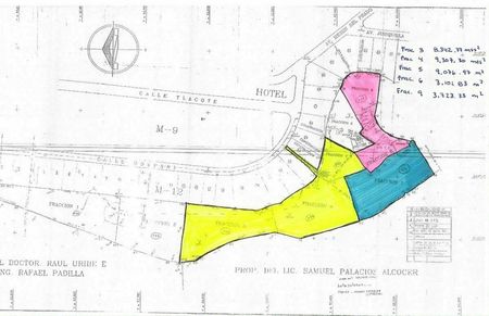
Se vende esta magnífica propiedad que bien puede destinarse a una casa de campo o a un desarrollo de 33 casas de lujo dentro de un ambiente campestre rodeado de árboles y un arroyo que corre de norte a sur en el límite oriental.
Puede desarrollarse un proyecto muy exclusivo.
El acceso a la propiedad es por la Calle de Mompaní.
Existe la posibilidad de adquirir otras cinco fracciones colindantes cuyo acceso es exclusivo a través de una servidumbre legalizada y escriturada.

La Fracción 3 tienen uso de suelo H2 (200 habitantes/ha)
Superficie: 8,342.774
El precio de venta es $4,200/m2, que es el valor catastral.
El resto de las fracciones también están en venta.

Superficie total: 37,173.11 m2.

Donner & Asociados

  • 322111162
  • ryan-donner-y-asociados.easybroker.com