Donner & Asociados

  • 322111162
  • ryan-donner-y-asociados.easybroker.com

Terreno Residencial Zona Sur, Santiago N.L

Yerbaniz, Santiago

$3,515,500 For Sale

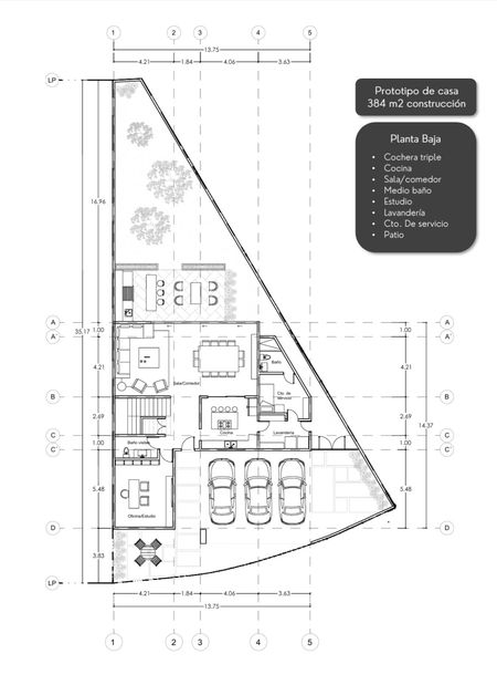
  • 395 m² Lot Size
  • 35.17 m Lot Length
  • 13.74 m Lot Width
  • New Age
  • EB-SF2952 ID
Description

Terreno de Oportunidad en Venta 395 m2, Aysso, Santiago, N.L.- $3,515,500 MXN

Costo xm2 = $ 8,900 MXN
Costo x m2 Actual = $11,500 MXN

Terreno Residencial ligeramente descendente (casi plano).
Fraccionamiento privado a sólo 15 min de S.P.G.G.
•Cuenta con proyecto para construcción.
•Entrega Inmediata.

Amenidades: caseta de seguridad, casa club, gym, alberca y parque central.
Información al 8116049727

Donner & Asociados

  • 322111162
  • ryan-donner-y-asociados.easybroker.com

Donner & Asociados

  • 322111162
  • ryan-donner-y-asociados.easybroker.com