Donner & Asociados

  • 322111162
  • ryan-donner-y-asociados.easybroker.com

Terreno en venta, Atlatlahúcan Morelos

Atlatlahucan, Atlatlahucan

$22,000,000 For Sale

  • 13,487.5 m² Lot Size
  • New Age
  • EB-QV0011 ID
Description

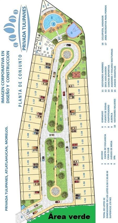
Ubicado en “El Temaxcal”, Municipio de Atlatlahúcan, Estado de Morelos.

SUPERFICIE TOTAL EN VENTA 13,487.50 m2

Ideal para desarrollo.

Colinda con el fraccionamiento Residencial “Lomas de Cocoyoc.”
A 10 minutos del Parque Acuático “Oaxtepec”, a unos minutos del pueblo Mágico de Tlayacapan y a sólo 80 minutos de la CDMX.
El terreno se encuentra en una zona residencial, con todos los servicios cercanos:
Locales comerciales, gasolineras, tiendas de auto servicio, mercado de artesanías, pueblo mágico (Tlayacapan), parques acuáticos (Oaxtepec), zonas turísticas y vacacionales.
De fácil acceso, a 80 minutos de la Ciudad de México.

Se disfruta desde que empieza el viaje, ya que desde el momento en que uno va sobre la autopista “México – Cuernavaca” recorriendo los 60 kilómetros que la separan de la Ciudad de México, dan ganas de detenerse para aspirar profundamente el aroma del bosque del Ajusco; algo así como un rito de bienvenida.
De la ultima caseta al terreno se disfruta de un corredor turístico lleno de magia, cultura y artesanías.

La avenida principal está a 150 mts. Esta avenida lleva al pueblo con encanto de Atlatlahucan y a la carretera México-Cuautla al oriente, al poniente al pueblo mágico de Tlayacapan que es la carretera Xochimilco-Oaxtepec.

Su ubicación es una privada que permite tener seguridad y tranquilidad. La zona es de excelente clima cálido y agua en abundancia. Con una maravillosa vista hacia los cerros de Tlayacapan y Tepoztlán (pueblos mágicos) y al oriente la impresionante vista de los volcanes Popocatépetl e Iztaccíhuatl.

**PRECIO REBAJADO DE $33,718,750.00
**REMATE: $ 22 MILLONES

No lo pienses más y solicita tu visita para conocer este maravilloso terreno!

Donner & Asociados

  • 322111162
  • ryan-donner-y-asociados.easybroker.com