Donner & Asociados

  • 322111162
  • ryan-donner-y-asociados.easybroker.com

Sierra Alta, recámara en PB, alberca, en esquina

Sierra Alta 9o Sector, Monterrey

$27,990,000 For Sale

  • 4 Bedrooms
  • 5 Bathrooms
  • 1 Half Bathrooms
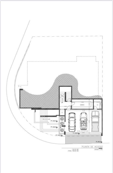
  • 3 Parking spaces
  • 740 m² total space
  • 495 m² Lot Size
  • 3 Floors
  • Under Construction Age
  • EB-TS9622 ID
Description

Preciosa casa con alberca y RECÁMARA EN PB en PRE-VENTA (Ya inició la construcción)
Sierra Alta 9no sector
740 m2 de construcción.
495 m2 de terreno

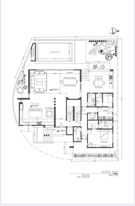
4 amplias recámaras con baño completo y vestidor c/u (1PB + 3PA)
5 baños completos + 1 medio baño
+ cuarto de servicio con baño completo
Cochera para 3 autos
Doble altura en sala comedor
Amplia Cocina con isla y espacio para antecomedor
Alberca
Preparación para elevador
Amplia palapa con área de grill
2 Bodega2 de más de 15m2
Estancia familiar


A nivel de calle
Cochera con bodega #1
Jardinera
Escaleras a entrada principal
Escaleras interiores
Cubo para elevador
Bodega principal

En PB
Entrada principal
Baño de visitas
Cocina con antecomedor o family
Alacena
Sala- comedor
Cubo para elevador
Recámara con baño completo y vestidor
Lavandería
Cuarto de servicio con baño completo y acceso independiente
Palapa con área de grill
Baño completo en área de palapa
Jardín
Alberca y cuarto de máquinas

En PA
Estancia familiar
Cubo para elevador
3 recámaras con baño completo y amplio vestidor walk-in
La recámara principal con balcón y doble lavabo

Amenities
  • Cistern
  • Covered parking
  • Street parking
  • Garden
  • BBQ grill
  • Patio
  • Terrace
  • Air conditioning
  • Heating
  • Kitchen
  • Fitted Kitchen
  • Service Room
  • Private housing development
  • 24 Hour Security
  • Pets allowed
  • Pool

Donner & Asociados

  • 322111162
  • ryan-donner-y-asociados.easybroker.com

Donner & Asociados

  • 322111162
  • ryan-donner-y-asociados.easybroker.com