Donner & Asociados

  • 322111162
  • ryan-donner-y-asociados.easybroker.com

SE VENDE HERMOSA CASA DE UNA PLANTA CON AMPLIO PATIO

Lomas de Sayula, Tapachula

$7,500,000 For Sale

  • 4 Bedrooms
  • 4 Bathrooms
  • 1 Half Bathrooms
  • 2 Parking spaces
  • 431.81 m² total space
  • 984 m² Lot Size
  • EB-TN1352 ID
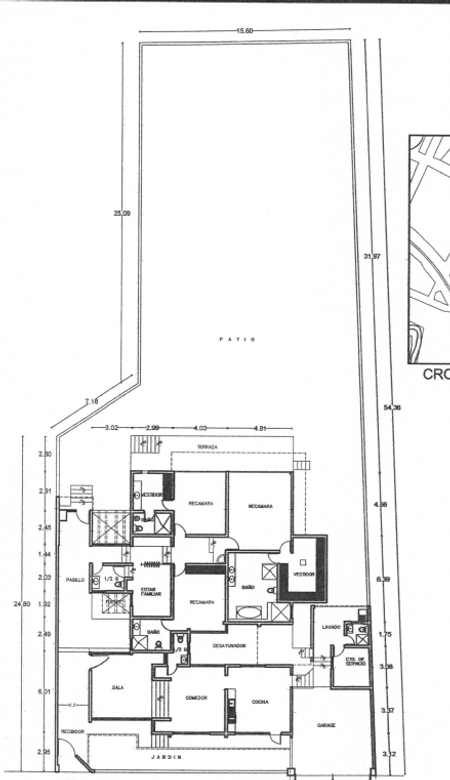
Description

Se vende hermosa casa ubicada dentro de la colonia Lomas de Sayula, cuenta con amplios espacios, una increíble iluminación natural y un patio espectacular, ideal para una alberca y palapa.

La casa cuenta con:

- Jardín frontal
- Recibidor
- Garaje techado para 2 autos
- Cocina
- Comedor
- Sala
- Desayunador
- Cuarto de servicio con baño
- Área de servicio
- Medio baño
- Recámara principal con baño completo y vestidor
- Recámara 2 con vestidor y baño completo
- Recámara 3 con baño completo
- Recámara 4 con medio baño
- Terraza
- Pasillo
- Amplio patio

Donner & Asociados

  • 322111162
  • ryan-donner-y-asociados.easybroker.com

Donner & Asociados

  • 322111162
  • ryan-donner-y-asociados.easybroker.com