Donner & Asociados

  • 322111162
  • ryan-donner-y-asociados.easybroker.com

SANTA MARIA AZTAHUACAN NAVE INDUSTRIAL EN VENTA, IZTAPALAPA, CIUDAD DE MÉXICO

Santa María Aztahuacán, Iztapalapa

$25,000,000 For Sale

  • 2,978 m² total space
  • 2,988 m² Lot Size
  • 99 m Lot Length
  • 30 m Lot Width
  • EB-QJ8829 ID
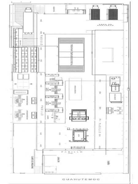
Description

Nave Industrial en venta en la colonia Santa María Aztahuacan, la cual cuenta con las siguientes características:

Superficie de terreno: 2988 m2
Construcción: 2978m2
Frente: 30m
Fondo: 99m aproximadamente
Uso de suelo: HM/3/40/B
Densidad: B(Una vivienda cada 100.0 m² de terreno)
Superficie máxima de construcción: 5380m2
Número de viviendas permitidas: 30

Cuenta con bodega y oficinas, también tiene los siguientes servicios:

-Electricidad
-Telefonía
-Agua
-Drenaje
-Transporte

Ubicada a 2 casas del Parque - Cuicatl Anyolque, a una calle de Av. Circunvalación y a dos calles del Parque Cuitláhuac.

Previa cita pasa conocerlo; posesión inmediata. Solamente al contado Sin apartados, sin anticipos, sin enganches.

Los inmuebles están sujetos a cambio de precio, sin previo aviso. Todo el proceso ante notario público. No se aceptan pagos en línea.
Tenemos Inmuebles a crédito o de contado a nivel nacional listos para su adquisición.

Donner & Asociados

  • 322111162
  • ryan-donner-y-asociados.easybroker.com