Donner & Asociados

  • 322111162
  • ryan-donner-y-asociados.easybroker.com

RESIDENCIAL RÍO BY CUMBRES- CANCÚN- VENTA DE HERMOSA CASA 3.8 MDP

Supermanzana 327, Benito Juárez

$3,800,000 MXN For Sale

  • 3 Bedrooms
  • 2 Bathrooms
  • 1 Half Bathrooms
  • 2 Parking spaces
  • 150 m² total space
  • 160 m² Lot Size
  • 2 Floors
  • Under Construction Age
  • EB-LG5468 ID
Description

RESIDENCIAL RÍO BY CUMBRES- CANCÚN- VENTA DE HERMOSA CASA 3.8 MDP

Casa Rio Yukón 17 $3,800,000
Lote de 160 m2, casa de 150 m2, entrega en Noviembre 2022

Ubicación: Av. Chacmool - Av. 135

• Seguridad 24/7
• Acceso controlado
• Pista de jogging, gimnasio, cancha
multifuncional.
• Areas verdes en diferentes parques
• Juegos infantiles
• Pista de bicicletas
• Estanque
• CCTV
• Casa Club
• Padell
• Volleyball

Ubicación: Residencia Rio by Cumbres
• Calle Rio Yukon 17
• A unos metros de las canchas de Padell

Fachada principal
• Concreto aparente
• Fachada con celosía desde sala
• Doble altura con jardín interior
• Orientación Norte - Sur

Fachadas Posterior
• Alberca
• Fachada con jardineras
• Orientación Norte - Sur

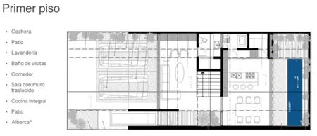
Primer piso
• Cochera
• Patio
• Lavandería
• Baño de visitas
• Comedor
• Sala con muro traslucido
• Cocina integral
• Patio
• Alberca

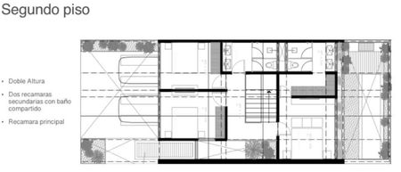
Segundo piso
• Doble Altura
• Dos recamaras secundarias con baño compartido
• Recamara principal

Ficha tecnica
• Casa en fraccionamiento con asociación civil
• Area habitable de 150 m2
• Totalmente nueva
• Dos cajones de estacionamiento
• Alberca
• Cocina integral con acabado en madera parota y granito
• Closets en todas las recamaras acabado en parota
• Pisos 45x90cm
• Pasta lisa en muros
• Grifería marca Moen
• Lamparas ahorradoras led
• Mesetas de granito
Se cotiza por separado
• Canceles de baño
• Persianas
• Sanitización
• Horno convencional
• Horno de microondas
• Paneles solares
• Aires acondicionados
• Sistema de presión constante

Amenities
  • Street parking
  • Garden
  • Fitted Kitchen
  • Double story
  • Private housing development
  • 24 Hour Security
  • Pool
  • Playground
  • Tennis court
  • Gym
  • Pets allowed

Donner & Asociados

  • 322111162
  • ryan-donner-y-asociados.easybroker.com