Donner & Asociados

  • +52322111162
  • ryan-donner-y-asociados.easybroker.com

Piso completo en venta o renta Torre TOP Obispado Monterrey

Obispado, Monterrey

$38,000,000 MXN For Sale

$180,000 MXN For Rent

  • 781 m² total space
  • New Age
  • EB-OP9306 ID
Description

*Precio de renta más IVA y mantenimiento.*

Piso Completo en renta para oficinas en la torre más alta de Latinoamérica, en Torre TOP Obispado en Monterrey, con estricta seguridad de acceso y requisitos de protección civil.

$35,800 (incluyendo IVA) de Mantenimiento

Incluye :
4 cajones de Estacionamiento fijos
32 Tarjetas de acceso en pool de Estacionamiento (sin costo extra).

Si requieren cajones adicionales, el costo por cada uno es de $1,750 más IVA.

Renta por m2 = $244 más IVA más mantenimiento aproximado de $44 .

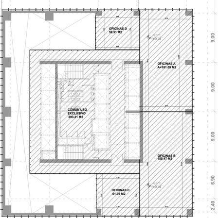
- 781m2 en obra gris, que son 488m2 de oficinas y 293 de áreas comunes.
- 4 cajones estacionamiento asignados (54m2), más 32 estacionamientos en pool.
- Preparaciones hidrosanitarias y eléctricas.
- Elevadores inteligentes.

La torre cuenta con área comercial, lobby muy elegante, hotel de reconocimiento internacional, oficinas de corporativos de primer nivel y excelente ubicación en el centro de Monterrey.

Amenities
  • Covered parking

Donner & Asociados

  • +52322111162
  • ryan-donner-y-asociados.easybroker.com