Donner & Asociados

  • 322111162
  • ryan-donner-y-asociados.easybroker.com

RENTA LOCALES COMERCIALES PLAZA AVE. DE LOS BOSQUES 125 TECAMACHALCO

Lomas de Tecamachalco, Huixquilucan

$1,150 For Rent

  • 6 Bathrooms
  • 7 Parking spaces
  • EB-TP2064 ID
Description

Plaza comercial con excelente ubicación en Tecamachalco enfrente de la plaza el Triangulo, en le planta baja será para un restaurante y en el primer y segundo nivel, será para locales de ejercicio yoga, spa, consultorios. Los metrajes de los locales aún no están definidos y pueden variar de acuerdo al proyecto.
Si tienes alguno de estos giros escríbenos.


Av. de los Bosques 125, Tecamachalco, Naucalpan de Juárez, CDMX
Zona de alto flujo vehicular y peatonal, cercana a El Triángulo Express Mall, Club Tecamachalco y Parque Blvd. de la Luz.



Características Generales:
• Desarrollo comercial de 3 niveles
• Diseño arquitectónico moderno por Mauricio Cohen Arquitectos
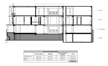
• Superficie total rentable: 959.89 m²
• Carga eléctrica instalada: 45 kW por nivel
• Alturas libres:
• Planta Baja: 2.50 m
• Nivel 1: 2.48 m
• Nivel 2: 2.60 m



Distribución por nivel:

Planta Baja – 378.37 m²
• Planta libre: 224.16 m²
• Terraza: 82.20 m²
• Circulaciones y baños: 72.01 m²

Nivel 1 – 311.04 m²
• Planta libre: 225.39 m²
• Terraza: 16.12 m²
• Circulaciones y baños: 69.53 m²

Nivel 2 – 270.48 m²
• Planta libre: 177.69 m²
• Terraza: 39.93 m²
• Circulaciones y baños: 31.44 m²
• Área de administración y bodegas: 21.42 m²



Amenidades y detalles adicionales:
• Áreas comunes equipadas con baños para hombres y mujeres por nivel
• Terrazas ideales para giros de alimentos o conceptos con atención al público
• Vestíbulos amplios
• Acceso peatonal desde banqueta y bahía vehicular
• Fachada con gran visibilidad sobre Av. de los Bosques

Amenities
  • Platform
  • Covered parking
  • Street parking
  • Terrace
  • Accessibility for elderly
  • Handicap accessible
  • Air conditioning
  • Elevator
  • 24 Hour Security
  • Pets allowed

Donner & Asociados

  • 322111162
  • ryan-donner-y-asociados.easybroker.com