Donner & Asociados

  • 322111162
  • ryan-donner-y-asociados.easybroker.com

Preventa Residencia en Viladiú Cholul

Cholul, Mérida

$4,995,000 For Sale

  • 3 Bedrooms
  • 3 Bathrooms
  • 1 Half Bathrooms
  • 4 Parking spaces
  • 228 m² total space
  • 500 m² Lot Size
  • 50.18 m Lot Length
  • 10 m Lot Width
  • 1 Floors
  • Under Construction Age
  • N/A Expenses
  • EB-RX5286 ID
Description

Hermosa y confortable Residencia en Preventa en Fraccionamiento Viladiú Cholul de 1 planta con amplio terreno.
A solo 6 minutos del periférico de Mérida la casa esta diseñada para vivir un entorno tranquilo, desarrollado en una zona habitacional urbanizada y en constante crecimiento, rodeada de servicios y vialidades.

Descripción:
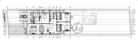
Sala
Comedor
Cocina con isla, carpintería y meseta de granito.
Terraza
Área de Lavado techada
Garaje techado para 2 autos y 2 sin techar
Piscina de 3 X 5 con iluminación y acabado Chukum
1/2 Baño de visitas
Recamara Principal con área de closet vestidor y baño completo
2 recamaras secundarias con área de closet y baño completo c/u

Equipamiento y Características
Pisos Cerámicos
Carpintería en cocina gavetas superiores e inferiores
Altura de la casa de 2.90 MTS
Mesetas de mármol en baños,
Cisterna y Biodigestor
Barda perimetral
Closet de blancos

AMENIDADES:
-Piscina

Medidas:
Terreno 10 x 50.18 = 500 M2
Construcción 228 M2


FORMAS DE PAGO:
- Créditos bancarios y recurso propio.

Formas y Métodos de pago
Forma de pago:
- Apartado: $50,000.00
- Enganche: 30%
Entrega 3-4 meses posteriores a la firma de Promesa
Mantenimiento N/A
Formas y planes de pago.-
Precio total con Recurso propio $4,995,000 (PRECIO DE PREVENTA)
Tipos de créditos aceptados.- Bancarios

** Los precios NO Incluyen gastos Notariales, impuestos, derechos, NI costos de contratos de servicios.
La responsabilidad y cumplimiento de garantía es a cargo de los propietarios y/o Constructoras.

Amenities
  • Cistern
  • Covered parking
  • Street parking
  • Garage
  • Garden
  • Terrace
  • Fitted Kitchen
  • Single story
  • Pets allowed
  • Pool

Donner & Asociados

  • 322111162
  • ryan-donner-y-asociados.easybroker.com