Donner & Asociados

  • 322111162
  • ryan-donner-y-asociados.easybroker.com

Parque - Lerma PRO - 27,000 m2 divisibles

San José el Llanito, Lerma

US$ 9.10 per m² For Rent

  • 70 Parking spaces
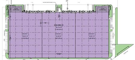
  • 27,054 m² total space
  • New Age
  • 13% Expenses
  • EB-TM8666 ID
Description

Nave 3: 27,054 m2
- Divisible en: 16,500 m2 y 8,681 m2
Oficinas: 3% a la medida
Entrega: Inmediata

Altura minima: 10.97 mts
• Illumination natural: 7%
• Techo: Lamina KR – 18 con aislante
• Resistencia de piso: 6 ton por m2
• Sistema contra incendio: Gabinetes y Mangueras
• Andenes: 30
• 2 rampas de concreto
• Lamparas LED con sensor de movimiento
• Transformador: 1,500 KVAs

Ubicado en una de las principales zonas
industriales del mercado de Toluca (Carretera
Federal México-Toluca).
• Complejo industrial cerrado de 5 edificios.
• Disponibilidad de mano de obra..

$9.10 USD por m2, mas NNN

Amenities
  • Platform
  • Garden
  • Patio
  • Storge Unit
  • Closed-Circuit Security System
  • Office
  • 24 Hour Security
  • Single story

Donner & Asociados

  • 322111162
  • ryan-donner-y-asociados.easybroker.com

Donner & Asociados

  • 322111162
  • ryan-donner-y-asociados.easybroker.com