Donner & Asociados

  • 322111162
  • ryan-donner-y-asociados.easybroker.com

OFICINA EN RENTA EN COLONIA JUÁREZ

Juárez, Cuauhtémoc

$35,000 For Rent

  • 1 Half Bathrooms
  • 80 m² total space
  • 2014 Age
  • ground_floor Floor
  • 1 Expenses
  • EB-CS0626 ID
Description

Dinamarca 86 se construyó en los años 50´s con un estilo Funcionalista – Modernista. Cuenta con 4 niveles de oficinas y 2 locales comerciales en Planta Baja.
Fue remodelado en 2014 con un concepto vintage que procura respetar los materiales originales del edificio.
Cuenta con CCTV, Puerta de seguridad y circulaciones de mármol importado.

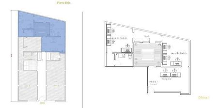
Oficina 1 cuenta con 80 m2 distribuidos de la siguiente forma: Dos áreas de oficinas, 1 área de recepción, 1 sanitario y una amplia terraza interna privada.

Pension a 10 metros.

Incluye mantenimiento.

Amenities
  • Cistern
  • Accessibility for elderly
  • Street parking
  • Terrace
  • Handicap accessible
  • Office
  • 24 Hour Security
  • Pets allowed
  • Smoking allowed

Donner & Asociados

  • 322111162
  • ryan-donner-y-asociados.easybroker.com

Donner & Asociados

  • 322111162
  • ryan-donner-y-asociados.easybroker.com