Donner & Asociados

  • 322111162
  • ryan-donner-y-asociados.easybroker.com

Oficinas en Renta en Santa Fe

Santa Fe Cuajimalpa, Cuajimalpa de Morelos

US$ 21 per m² For Rent

  • 382.62 m² total space
  • 80 mxn x m2 Expenses
  • EB-UC1266 ID
Description

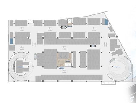
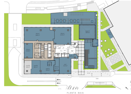
NIVEL OFICINA
Local comercial
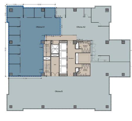
Nivel Mezzanine
Nivel Mezzanine
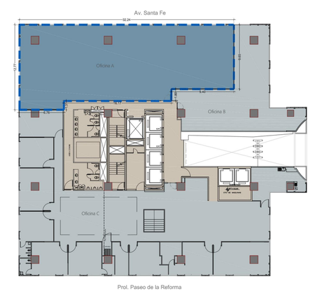
Nivel 2
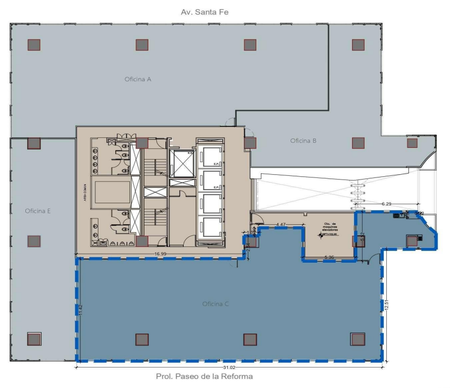
Nivel 2
Totales m2 1,459.98 m2 1,672.46 m2
ÁREA UTIL m2 ÁREA RENTABLE m2
3B2
A
C
A1
A2
64.02 m2
417.53 m2
470.24 m2
382.62 m2
338.05 m2
64.02 m2
364.86 m2
408.48 m2
330.97 m2
291.65

Amenities
  • Covered parking
  • Street parking
  • Accessibility for elderly
  • Handicap accessible
  • Elevator
  • Door man
  • 24 Hour Security

Donner & Asociados

  • 322111162
  • ryan-donner-y-asociados.easybroker.com

Donner & Asociados

  • 322111162
  • ryan-donner-y-asociados.easybroker.com