Donner & Asociados

  • 322111162
  • ryan-donner-y-asociados.easybroker.com

OFICINA EN RENTA EN TORRE ALTA SAN PEDRO GARZA GARCIA

Valle Del Campestre, San Pedro Garza García

$198,000 For Rent

  • 14 Parking spaces
  • 450 m² total space
  • 21200 Expenses
  • EB-NJ3835 ID
Description

Oficinas en renta en Torre Alta San Pedro Garza Gracia.
Oficinas muy bien ubicadas.
Fácil vías de acceso.

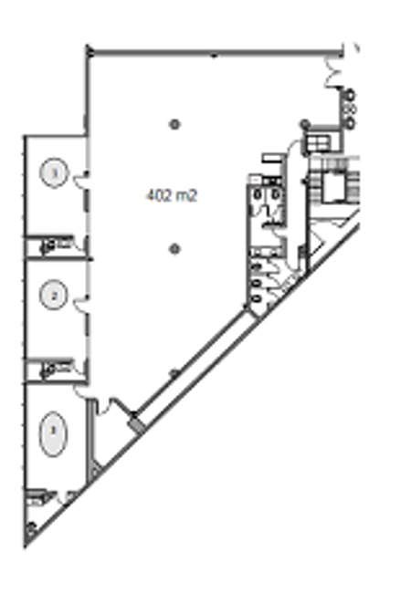
Plano de referencia de las Áreas:

3 Oficinas Privadas c/ baño 107.00 m2
Área Abierta 272.00 m2
Área de Baños 21.00 m2
Site eléctrico 10.00 m2
Total 410.00
Área Común 47.84
total 450.76 m2
Precio de Renta de $440.00 por m2
Precio Total: $198,000.00 MN
MAS IMPUESTOS

Mantenimiento
14 cajones de estacionamiento
Cuota de mtto de c/cajón 415.00
Total $5,810.00
mas el costo de mantenimiento de oficinas
total $ 15,479.10
pago total Administración de $21,200.00 MN
MAS IMPUESTOS.


EQUIPAMIENTO:
* Baños Hombres con un sanitario normal y
uno de discapacitados, dos mingitorios y dos
lavabos
* Baños Mujeres con dos sanitarios normales y
uno de discapacitados, dos lavabos.
* Cocineta amueblada
* Aire Acondicionado y Calefacción central.
* Tres Oficinas Privadas con baño
* Cuarto Site y Eléctrico.
* Iluminación general led sólo en privados y
pasillos


DISPOSICIÓN:
*Entrega inmediata con gracia de 45días
para equipamiento.

REQUISITOS:
Depósito de dos meses.




Esta propiedad será sujeta a disponibilidad y el precio estará sujeto a cambios sin previo aviso.

En el caso de RENTA los precios estipulados son mas los impuestos correspondientes.

El envío de esta ficha no compromete a las partes a la suscripción de ningún documento legal.

La información y medidas son aproximadas y deberán ser ratificadas con la documentación original de cada propiedad.

Amenities
  • Covered parking
  • Accessibility for elderly
  • Handicap accessible
  • Air conditioning
  • Elevator
  • Private housing development
  • 24 Hour Security

Donner & Asociados

  • 322111162
  • ryan-donner-y-asociados.easybroker.com

Donner & Asociados

  • 322111162
  • ryan-donner-y-asociados.easybroker.com