Donner & Asociados

  • 322111162
  • ryan-donner-y-asociados.easybroker.com

Naves Industriales en renta San Juan del Río Queretaro 14,500m2 GPS

Nuevo San Juan, San Juan del Río

US$ 85,550 For Rent

  • 14,500 m² total space
  • 23,049 m² Lot Size
  • EB-QN6754 ID
Description

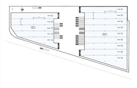
Nave Industrial en Renta en San Juan del Río Queretaro
Entrega: Agosto 2024

Descripción y características
Superficie Total de la Nave: 14,500 m2
Superficie Total de Terreno: 23,049 m2


- Subdividible desde 1,800 m2
- Oficinas construidas a la medida
- Estacionamientos para oficinas y personal.
- Altura promedio de nave de 11 metros.
- Muros de concreto “tilt up”.
- Capacidad en pisos de 8/10 Ton por m2
- Sistema de red contra incendio.
- Iluminación natural en nave del 8%.
- Iluminación a base de lámparas ahorradoras LED.
- Todos os servicios necesarios para cualquier tipo de empresa.
- 1 anden por cada 1,000 metros arrendados.
- 1 rampa de concreto para ingresar a la nave por usuario.

Donner & Asociados

  • 322111162
  • ryan-donner-y-asociados.easybroker.com