Donner & Asociados

  • 322111162
  • ryan-donner-y-asociados.easybroker.com

Nave Industrial en Venta Parque Ind Mitras Zona Libramiento Noreste

Ciudad Industrial Mitras, García

$32,000,000 For Sale

  • 12 Parking spaces
  • 2,400 m² total space
  • 3,200 m² Lot Size
  • 80 m Lot Length
  • 40 m Lot Width
  • 2010 Age
  • EB-SW9012 ID
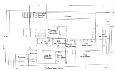
Description

Nave Industrial en Venta sobre Libramiento Noreste
Ubicación estratégica y gran potencial de desarrollo

Esta nave industrial se encuentra sobre el Libramiento Noreste, una de las vías más importantes para el tránsito pesado y conexión logística en la zona. Ideal para centros de distribución, almacenamiento o desarrollo de bodegas.

Detalles de la propiedad:
Superficie total del terreno: 3,200 m²

Área techada de nave: 2,400 m²

Patio de maniobras: 800 m²

Altura mínima: 8 metros

Área de carga y descarga con anden

Caseta de vigilancia con control de acceso

Oficinas: Aproximadamente 200 m²

Baños para trabajadores

Potencial de desarrollo:
Proyecto ideal para la construcción de bodegas individuales de 500 m²

Gracias a su ubicación y características, esta propiedad representa una excelente oportunidad para inversión o crecimiento de operaciones industriales.

Excelente conectividad a zonas industriales y principales vialidades.

Contáctanos hoy mismo para más información o agendar una visita personalizada.

Donner & Asociados

  • 322111162
  • ryan-donner-y-asociados.easybroker.com