Donner & Asociados

  • 322111162
  • ryan-donner-y-asociados.easybroker.com

Nave Industrial en renta en Perinorte

Bosques del Perinorte, Cuautitlán Izcalli

US$ 15 per m² For Rent

  • 7,461 m² total space
  • EB-SS9095 ID
Description

CARACTERÍSTICAS

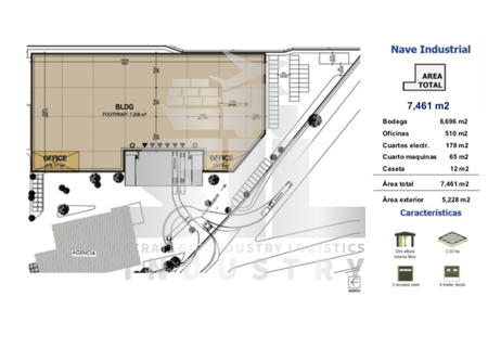
MEDIDAS
Área total: 7,461 m2
· Área de bodega: 6,696 m2
· Área de oficinas: 510 m2
· Cuartos electr: 178 m2
· Cuarto de maquinas: 65 m2
· Caseta 12 m2
· Altura mínima: 10 m
· Resistencia de piso: 6 TON/ m2

CARGA Y DESCARGA
· Andenes: 6
· Cajones de estacionamiento: 47
· Patio de maniobras: 5,228 m2

MATERIALES
· Techumbre: Lámina KR-18
· Tipo de muro: Tilt-up

SERVICIOS
· Bodega dentro de parque: Sí
· Vigilancia: 24/7
· Luminarias: LED
· Sistema contra incendios: Adaptable
· Baños: Sí

PRECIO $15 USD/ M2 +10 % MTTO+ IVA


AGENDA TU CITA CON 24 HRS. DE ANTICIPACIÓN PARA CONOCERLA

Donner & Asociados

  • 322111162
  • ryan-donner-y-asociados.easybroker.com