Donner & Asociados

  • 322111162
  • ryan-donner-y-asociados.easybroker.com

NAVE INDUSTRIAL EN EL SAUZAL

El Sauzal, Ensenada

US$ 6.40 per m² For Rent

  • 36 Parking spaces
  • 5,558 m² total space
  • 6,895 m² Lot Size
  • EB-SI0053 ID
Description

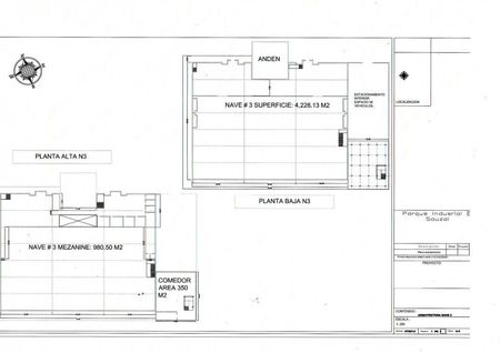
Espacio Disponible: 5,558 m2 / 59,831 Sqft
Bodega: 4,228.13 m2 / 45,511.17 Sqft.
Mezzanine: 980.50 m2 / 10,554 Sqft.
Altura libre: 5.5 m - 6.10 m
Área total de terreno: 6,895 m2 / 74,217 Sqft
Andenes: 4
Piso: Grosor de 6”
Tipo De Construcción: Tilt Up
Estacionamientos: 36
Patio de maniobras
Área de oficinas
Comedor: 350 m2 / 3,767.36 Sqft.
Acceso controlado 24/7
Iluminación
Acceso controlado 24/7
luz natural para el área de producción

Amenities
  • Platform
  • Street parking
  • Storge Unit
  • 24 Hour Security

Donner & Asociados

  • 322111162
  • ryan-donner-y-asociados.easybroker.com