Donner & Asociados

  • 322111162
  • ryan-donner-y-asociados.easybroker.com

Nave en Renta Periférico Sur

El Mante, Zapopan

$361,900 MXN For Rent

  • 13 Parking spaces
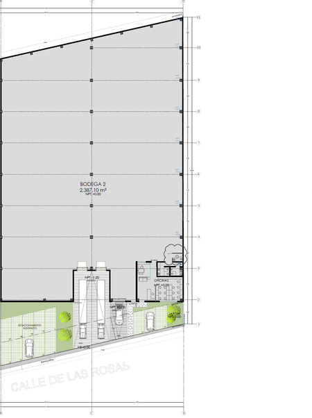
  • 2,387 m² total space
  • 2,800 m² Lot Size
  • 67 m Lot Length
  • 45 m Lot Width
  • 2 Floors
  • 2016 Age
  • 0 Expenses
  • EB-TP7898 ID
Description

Su ubicación estratégica permite trasladarse a los
siguientes puntos de interés en menos de 8 min:
Ubicación
estratégica
PI Tecnológico I / PI Tecnológico II / ITESO
Av. Colón / Tata / CEDIS Electra / HP / Herbalife
José Cuervo / Embotelladora La Favorita / Centro Sur


13 cajones de estacionamiento.
2 rampas para tráiler
2 rampa para camioneta
7 baños
2 pisos de oficinas
comedor
11 metros libres de altura
Disponibilidad Enero 2026

Área de Nave: 2,387m2
Oficinas: 396m2
Contrato Mínimo de 3 años

Amenities
  • Platform
  • Cistern
  • Covered parking
  • Street parking
  • Garage
  • Loading dock
  • Patio
  • Accessibility for elderly
  • Handicap accessible
  • Air conditioning
  • Storge Unit
  • Kitchen
  • Double story
  • Hydropneumatic
  • Office
  • Ground Floor
  • Ramps
  • Pets allowed

Donner & Asociados

  • 322111162
  • ryan-donner-y-asociados.easybroker.com