Donner & Asociados

  • 322111162
  • ryan-donner-y-asociados.easybroker.com

NAVE EN RENTA PARQUE INDUSTRIAL EN SALINAS VICTORIA

Emiliano Zapata, Salinas Victoria

$2,363,400 For Rent

  • 18,180 m² total space
  • 28,668 m² Lot Size
  • EB-PI0427 ID
Description

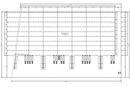
NAVE EN RENTA SALINAS VICTORIA CON RAPIDOS ACCESOS A CARRETERAS A LAREDO Y COLOMBIA

14 Andenes

1 Rampa de acceso

Altura punto mas bajo 10 mts. punto mas alto 13 mts.

Barda de bodega block #6 a altura de 6 mts.

Techo con lámina acanalada 85%, lámina traslúcida 15% y colcha térmica 85%

Firme con vailla de 3/8" a cada 30 cms con espesor de 15 cms

Extractores tipo cebolleta y louvers

Iluminación LED al interior de nave y mercurial en área de maniobras

Posibilidad de oficinas de acuerdo a necesidades

Servicios de luz, agua y drenaje

Barda perimetral de block a altura de 3 mts y alambre de puas en parte superior

Amenities
  • Loading dock
  • Platform
  • Street parking
  • Door man

Donner & Asociados

  • 322111162
  • ryan-donner-y-asociados.easybroker.com