Donner & Asociados

  • 322111162
  • ryan-donner-y-asociados.easybroker.com

Locales Comerciales en preventa en Av. Libano en Mérida Yucatán.

México Norte, Mérida

$2,066,400 For Sale

  • 50.4 m² total space
  • Under Construction Age
  • 2 Floor
  • $25 x m2 Expenses
  • EB-UK9127 ID
Description

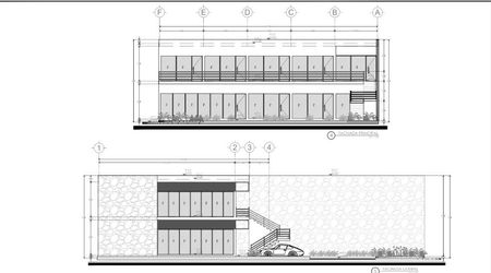
Desarrollo de plaza comercial con 9 locales distribuidos en dos plantes ,
ubicado en una de las avenidas más emblemáticas al norte de Mérida.

UBICACIÓN EN AV.LÍBANO, ESQUINA SEMÁFORO EN SENTIDO PREFERENTE.

El proyecto se encuentra conformado por dos niveles de locales comerciales, contempla espacios con superficies promedio de 50.40 m2 y una altura de piso a plafón de 3.20m en ambos niveles.

ELECTRICIDAD
 Centro de carga y ductos para salidas de A.A. en locales
AGUA POTABLE
 Alimentación de agua potable hacia los locales.

DRENAJE SANITARIO
 Descarga sanitaria y bajantes.

DRENAJE PLUVIAL
 Drenaje Pluvial, con bajantes pluviales.

ACABADOS
 Interior, sin acabado, solo muro de block expuesto.
 Exterior, a tres capas con pintura de acuerdo al proyecto.
 Piso, de concreto y cruz maya en estacionamiento.

CANCELERIA
 Puertas y ventanas de locales, de aluminio y cristal.
GAS
 Ductos para cruce de tubería.

AREAS VERDES
 Áreas ajardinadas.

SEÑALETICA
 Señalización, de ruta de evacuación, punto de reunión, alarma sonora y
detector de humo.

Entrega, Julio 2026

Formas de pago
10% ENGANCHE
60% DIF A 14 MESES
30% CONTRA ENTREGA

Las imágenes son con propósito de ilustración y pueden variar del producto final.

Amenities
  • Street parking

Donner & Asociados

  • 322111162
  • ryan-donner-y-asociados.easybroker.com

Donner & Asociados

  • 322111162
  • ryan-donner-y-asociados.easybroker.com