Donner & Asociados

  • 322111162
  • ryan-donner-y-asociados.easybroker.com

LOCAL EN RENTA COLONIA DEL VALLE , SAN PEDRO GG.

Del Valle, San Pedro Garza García

$124,400 For Rent

  • 2 Half Bathrooms
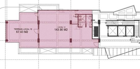
  • 207 m² total space
  • 1 Floor
  • EB-OS2156 ID
Description

LOCAL EN RENTA CENTRITO VALLE SAN PEDRO GARZA GARCIA

-Local: 143.90 m2
-Terraza: 63.43 m2.
-El precio de renta y mantenimiento es más iva.
-Ubicado en centrito valle en una torre de 12 departamentos y 3 pisos de locales.
-Giro recomendado para restaurante ,pero puede entrar otro tipo de giro.


Mantenimiento 15,000
- 7 Cajones de estacionamiero exclusivo


Informes
Lourdes Garcia
81 8020 6808
81 3232 2022.
www.lougad.com

Donner & Asociados

  • 322111162
  • ryan-donner-y-asociados.easybroker.com