Donner & Asociados

  • 322111162
  • ryan-donner-y-asociados.easybroker.com

Local Comercial Renta, Col. Coyoacán.

Copilco Universidad, Coyoacán

$140,000,000 For Sale

$900,000 For Rent

  • 2 Bathrooms
  • 2,380 m² total space
  • 2,103 m² Lot Size
  • EB-SG1421 ID
Description

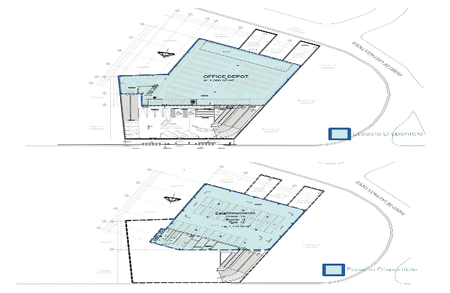
Local Comercial con grandes espacios, con muy buena ubicación.

Disponible: 2,380m²

- Planta Baja: 1,260.00m²

- Sótano: 1,120.00m²

Accesos: 2

Terreno: 2,103.60m²

Cerca de Centros Comerciales y vías alternas.

Excelente Oportunidad!!

Donner & Asociados

  • 322111162
  • ryan-donner-y-asociados.easybroker.com