Donner & Asociados

  • 322111162
  • ryan-donner-y-asociados.easybroker.com

Local Comercial Renta PLANTA BAJA Av. Rubén Darío $46,913 K396 E1

Circunvalación Vallarta, Guadalajara

$46,913 For Rent

  • 2 Parking spaces
  • 109.1 m² total space
  • Under Construction Age
  • Planta Baja Floor
  • EB-EK5205 ID
Description

Local comercial disponible en Av. Rubén Darío, exclusividad de giros (preguntar por giros disponibles). Mejora los rendimientos de tu negocio con esta ubicación privilegiada.

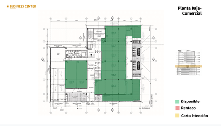
Local Planta Baja
Plaza comercial EN CONSTRUCCIÓN (Deja tu local apartado y firmado)
Superficie total: 109.1 m2
Mantenimiento adicional: 15 al 16% del valor de la renta
* Renta más IVA más cuotas de mantenimiento

* Precios de renta sujetos a cambios sin previo aviso.
* Precios de mantenimiento sujetos a cambios sin previo aviso.
* Verificar disponibilidad de giro y local.

Ubicación del desarrollo: Av. Rubén Darío 307, Circunvalación Vallarta, 44680 Guadalajara, Jal.

Características de la plaza:

TERMINACIÓN DE LA OBRA JUNIO 2020
Proyecto comercial mixto de alto nivel
Con certificado LEED Plata
6 niveles de oficinas
16 locales comerciales

Zona Privilegiada:

Sobre una de las principales vialidades de zona Providencial.
Cerca de Glorieta Minerva
Una de las zonas residenciales más consolidada de la ciudad.
Lifestyle ejecutivo.
Alta exposición de las marcas.
Fácil acceso y salida a las principales vialidades de la zona metropolitana.

C O N D I C I O N E S:

• Precios de renta estimados más IVA.
• Precios de mantenimiento aproximados del 15% al 16% más del valor de la renta.
• Se respetará exclusividad de Giro.
• Las remodelaciones e imagen de fachada de los locatarios deberán ser autorizadas por Naroa.
• Se deberá respetar el manual de adecuaciones.
• La administración de la plaza se hará por parte de Naroa.

R E Q U I S I T O S:

• Llenar solicitud y presentar carta intención.
• Investigación de buro arrendador
• Incremento anual de renta según INPC
• Plazo mínimo de 2 años de contrato
• A la firma de contrato pago de 2 meses de renta anticipada y 1 depósito en garantía.
• Proporción de días de gracia según m2 rentados para adecuaciones sin pago de rentas ni cuotas de mantenimiento
• Fiador con propiedad libre de gravamen.

Amenities
  • 24 Hour Security
  • Street parking

Donner & Asociados

  • 322111162
  • ryan-donner-y-asociados.easybroker.com