Donner & Asociados

  • 322111162
  • ryan-donner-y-asociados.easybroker.com

Local Comercial en Venta

Central, Monterrey

$2,700,000 For Sale

  • 2 Bathrooms
  • 2 Half Bathrooms
  • 2 Parking spaces
  • 80 m² total space
  • 163 m² Lot Size
  • Planta Baja Floor
  • EB-QN2435 ID
Description

Propiedad ideal para invertir, sobre excelente ubicación enfrente de Escuela Primaria Escuadron 201, sobre Av. Xilofactos.

Ideal para rentar pequeños departamentos o como locales comerciales.

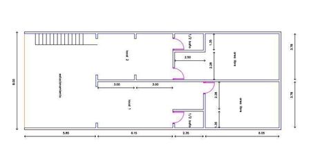
Cada local es de 40 m de construcción , 4 mts de frente x 10 de fondo y cada uno con un patio de 24 m2 .

En total la propiedad tiene un frente de 8 m y fondo de 20.4 m

Además la propiedad cuenta con área de estacionamiento con Reja y ambos locales cuentan con su cortina metálica.

Se vende con todo y proyecto para ampliación , para poder colocar ya sea otros dos departamentos o locales en la planta alta.

Actualmente se está rentando. Tiene un inquilino y si el nuevo propietario lo quiere. Se le traspasa con todo e Inquilino.


Terreno: 163.2
Construcción: 80 m2

Amenities
  • Patio
  • Storge Unit

Donner & Asociados

  • 322111162
  • ryan-donner-y-asociados.easybroker.com

Donner & Asociados

  • 322111162
  • ryan-donner-y-asociados.easybroker.com