Donner & Asociados

  • 322111162
  • ryan-donner-y-asociados.easybroker.com

Exclusiva Venta Casa en Benito Juárez Norte

Benito Juárez Nte, Mérida

$4,200,000 For Sale

  • 3 Bedrooms
  • 2 Bathrooms
  • 2 Parking spaces
  • 227.38 m² total space
  • 262.79 m² Lot Size
  • 20 m Lot Length
  • 13.4 m Lot Width
  • EB-IU4584 ID
Description

Exclusiva Venta Casa en Benito Juárez Norte
Gran Venta de Casa, en Benito Juárez Norte, con excelente ubicación en el Norte de la ciudad de Mérida.

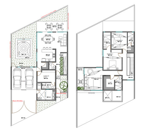
Consta de

PLANTA BAJA:

Cochera
Acceso
Sala
Comedor
Cocina
Alacena
Terraza
1/2 baño
Habitación
Patio de Tendido
Piscina

PLANTA ALTA:

Habitación Principal
Balcón
Closet Vestidor
Baño Principal
Habitación 1
Habitación 2
Baño Habitación 2

Generales:

Acabados de pasta tipo masilla y yeso en Muros.
Puertas de Poplar de piso a techo con diseño único
Pisos de porcelanato de 60 x 60 modelo Aspen gris.
Pisos en baños ( area de regadera ) de mosaico veneciano veneciano ibiza
Cocina Integral de alta calidad con cubierta de granito gris.
Cancelería de aluminio bronce línea 3 y cristal flotado claro de 6mm
Escaleras de Concreto con recubrimiento a base de piso porcelanato tipo madera lugano
bruno 15 x 50 cm.
Área de servicio con salidas para lavadora y secadora
Salidas para aires acondicionados en Recamaras.
Llaves de baño, lavabos y regaderas marca Castel.
Inodoros marca capizzi,
Bomba para Cisterna
Salidas para Tv y Teléfono
Impermeabilización de azotea, impermeabilizante acrílico.
Zoclos de aluminio liso 6cm.
Iluminación exterior en acceso y área trasera
Piscina con acabado de pasta tipo chukum con lámpara subacuática.

Amenities
  • Street parking
  • Garage
  • Terrace
  • Kitchen
  • Double story
  • Pool

Donner & Asociados

  • 322111162
  • ryan-donner-y-asociados.easybroker.com