Donner & Asociados

  • 322111162
  • ryan-donner-y-asociados.easybroker.com

"Espectacular terreno en venta en Cañada de Alférez"

Cañada de Alférez, Lerma

$19,684,000 For Sale

  • 10,640 m² Lot Size
  • EB-IN6002 ID
Description

Gran oportunidad de adquirir un terreno cerca de la naturaleza, excelente vegetación, tranquilidad, eco turístico, lejos del estrés de la gran Ciudad.
Espectacular vista panorámica, a 50 m de casas habitacionales, entre dos autopistas Carretera México- Toluca y Nueva Toluca- Naucalpan a 5 minutos de la reserva Santa Fe.
Cercano a la preparatoria Ibero y ranchos, exterior 100 m de frente.
"TERRENO ARBOLADO"
Documentación en regla listo para escriturar.
Se puede realizar permuta

Precio por m2 $1,850

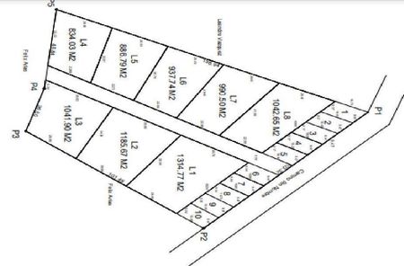
Se puede vender en lotes

"No pierdas está oportunidad de vivir cerca de la naturaleza"

Amenities
  • Restaurants
  • Shops
  • Street parking
  • Garden
  • Pets allowed

Donner & Asociados

  • 322111162
  • ryan-donner-y-asociados.easybroker.com

Donner & Asociados

  • 322111162
  • ryan-donner-y-asociados.easybroker.com