Donner & Asociados

  • 322111162
  • ryan-donner-y-asociados.easybroker.com

EDIFICIO EN VENTA ¡SUPER UBICACIÓN!

Chapultepec Morales, Miguel Hidalgo

$45,000,000 For Sale

  • 640 m² total space
  • EB-ME0817 ID
Description

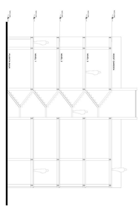
Edificio en excelente ubicación, en una de las zonas corporativas más importantes de la CDMX, con diferentes accesos viales, así como lugares de esparcimiento como restaurantes, jardines, centros comerciales, tiendas de autoservicio y medios de transporte público variado y sistema Ecobici. Ya se esta terminando, solo faltan pisos y plafones

Este edificio cuenta con 640m2 de construcción más 160m2 de Roof garden.

No cuenta con estacionamiento pero hay espacio local para estacionarse.

¡Aprovecha esta excelente oportunidad!
Contactanos para más información.

*precio sujeto a cambios sin previo aviso.

Amenities
  • Roof Garden
  • Elevator

Donner & Asociados

  • 322111162
  • ryan-donner-y-asociados.easybroker.com

Donner & Asociados

  • 322111162
  • ryan-donner-y-asociados.easybroker.com